シティタワーズ東京ベイ

所在地 東京都江東区有明2丁目1 建築年月 2019年7月 総戸数1539戸
交通 新交通ゆりかもめ「有明」駅 徒歩3分 /りんかい線「国際展示場」駅 徒歩4分 構造(WESTTOWER)鉄筋コンクリート造・地上32階地下1階塔屋2階建
(CENTRALTOWER)(EASTTOWER)鉄筋コンクリート造地上33階建・塔屋2階建
更新日:2026.03.06/次回更新日:2026.03.13
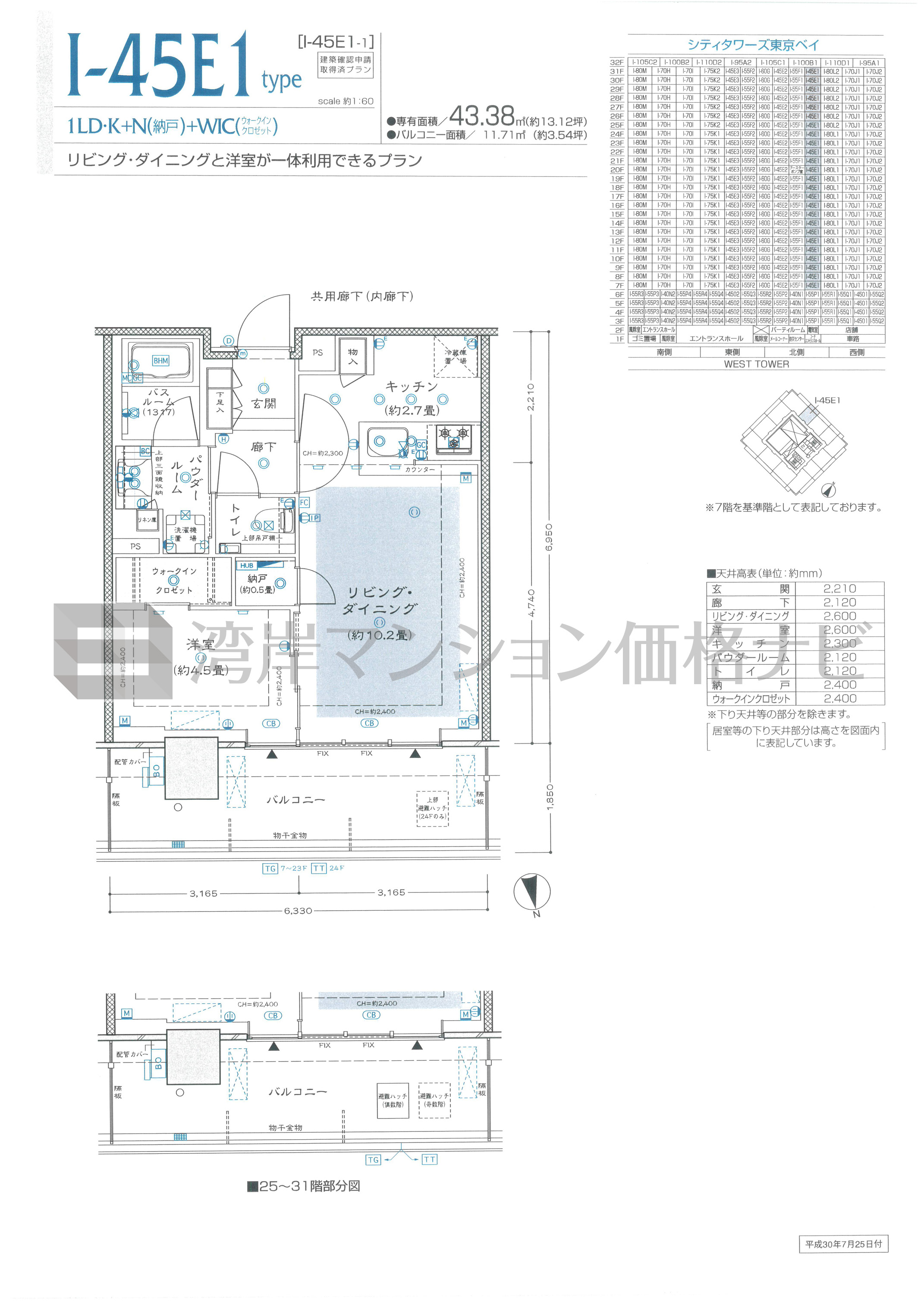
I-45E1 タイプ 間取り1LDK専有面積43.38m²
シティタワーズ東京ベイ
  • 所在地

    東京都江東区有明2丁目1

  • 最寄駅

    新交通ゆりかもめ「有明」 徒歩3分 /りんかい線「国際展示場」 徒歩4分

主要採光
採光面数 1面
住戸位置
バルコニー・テラス面積 11.71m²
ルーフバルコニー面積
専用庭面積
リビング・ダイニング広さ 10.2帖
キッチン広さ 2.7帖
洋室1 広さ 4.5帖
+α広さ 0.5帖
和室有無 無し
リビング・ダイニング天井高 2,600mm
洋室1天井高 2,600mm
キッチンタイプ 対面型
システムキッチン形状 I型
キッチンアクセス 1way
浴室大きさ 1317
浴室開口 無し
玄関床 タイル
洋室床 フローリング
リビング・ダイニング床 フローリング
キッチン床 フローリング
床暖房
ウォークインクロゼット
モニター付インターホン
インターネット専用線
IHクッキングヒーター
ガスコンロ
食洗機
ディスポーザー
浄水器
洗浄機能付便座
浴室乾燥機
その他