プラウドシティ東雲キャナルマークス

所在地 東京都江東区東雲1丁目10-14 建築年月 2020年1月 総戸数472戸
交通 東京メトロ有楽町線「豊洲」駅 徒歩10分 /東京メトロ有楽町線「辰巳」駅 徒歩12分 /りんかい線「東雲」駅 徒歩15分 構造鉄筋コンクリート造一部鉄骨造・地上15階建
更新日:2026.02.27/次回更新日:2026.03.06
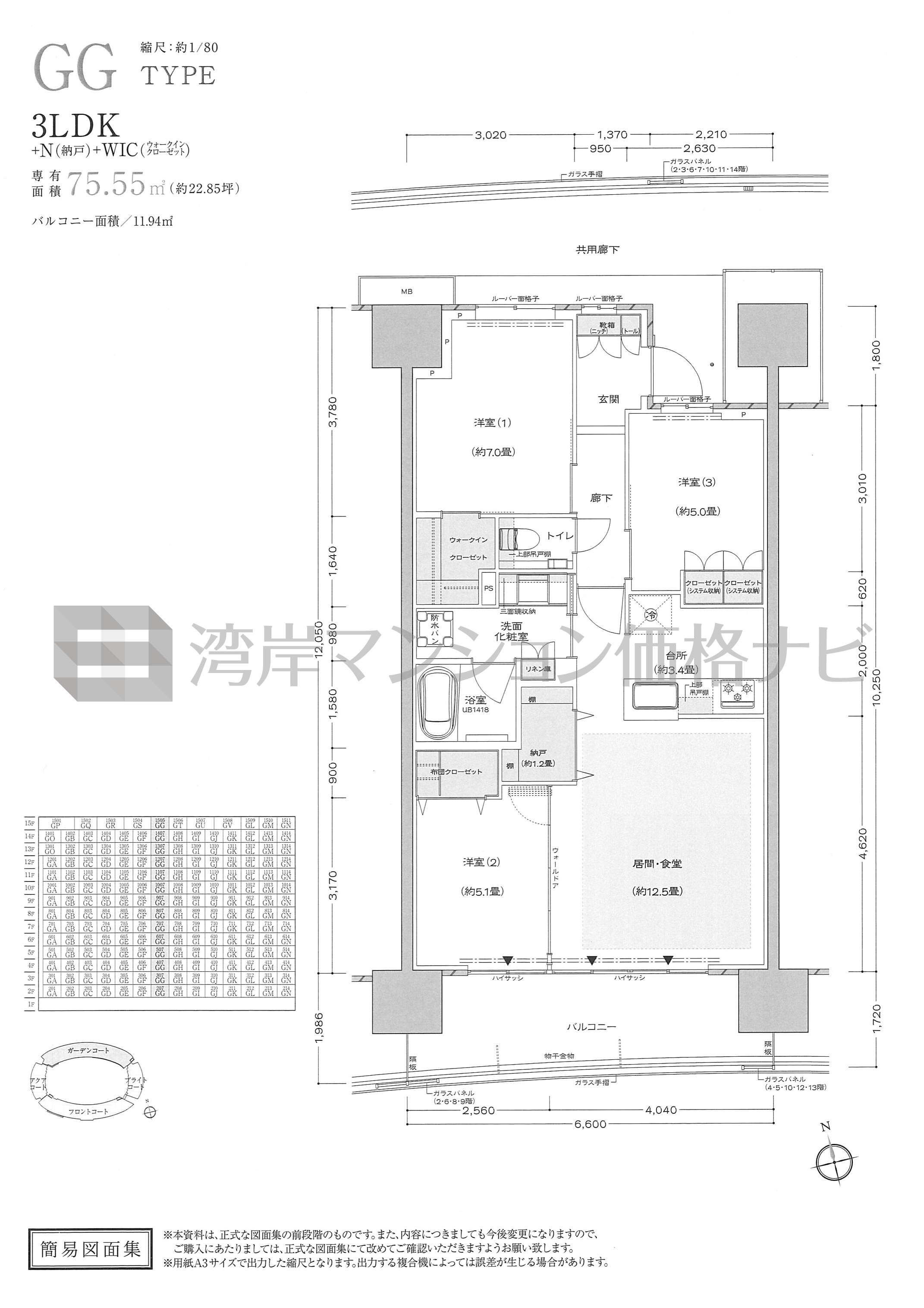
GG タイプ 間取り3LDK専有面積75.55m²
プラウドシティ東雲キャナルマークス
  • 所在地

    東京都江東区東雲1丁目10-14

  • 最寄駅

    東京メトロ有楽町線「豊洲」 徒歩10分 /東京メトロ有楽町線「辰巳」 徒歩12分 /りんかい線「東雲」 徒歩15分

主要採光
採光面数 2面
住戸位置
バルコニー・テラス面積 11.94m²
ルーフバルコニー面積
専用庭面積
リビング・ダイニング広さ 12.5帖
キッチン広さ 3.4帖
洋室1 広さ 7.0帖
+α広さ 1.2帖
和室有無 無し
リビング・ダイニング天井高
洋室1天井高
キッチンタイプ 対面型
システムキッチン形状 I型
キッチンアクセス 1way
浴室大きさ 1418
浴室開口 無し
玄関床 タイル
洋室床 フローリング
リビング・ダイニング床 フローリング
キッチン床 フローリング
床暖房
ウォークインクロゼット
モニター付インターホン
インターネット専用線
IHクッキングヒーター
ガスコンロ
食洗機
ディスポーザー
浄水器
洗浄機能付便座
浴室乾燥機
その他