プレミスト有明ガーデンズ

  • 有明エリア全9件中 4
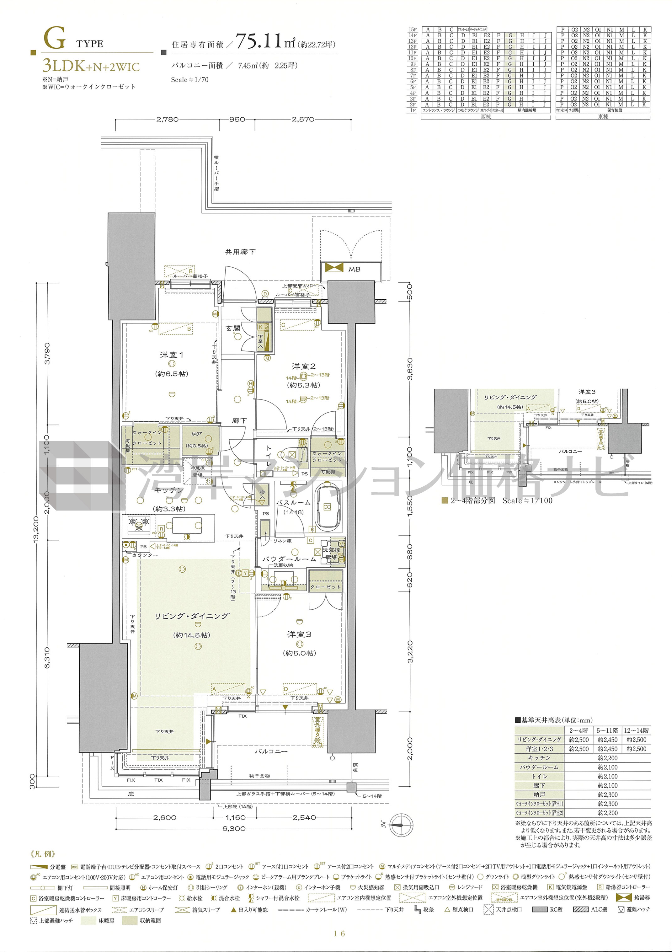
所在地 東京都江東区有明1丁目3-5 建築年月 2020年2月 総戸数258戸
交通 新交通ゆりかもめ「有明テニスの森」駅 徒歩2分 /りんかい線「国際展示場」駅 徒歩10分 /新交通ゆりかもめ「有明」駅 徒歩11分 構造鉄筋コンクリート造・地上15階建
更新日:2026.01.23/次回更新日:2026.01.30
G タイプ 間取り3LDK専有面積75.11m²
プレミスト有明ガーデンズ
  • 所在地

    東京都江東区有明1丁目3-5

  • 最寄駅

    新交通ゆりかもめ「有明テニスの森」 徒歩2分 /りんかい線「国際展示場」 徒歩10分 /新交通ゆりかもめ「有明」 徒歩11分

主要採光 西
採光面数 2面
住戸位置
バルコニー・テラス面積 7.45m²
ルーフバルコニー面積
専用庭面積
リビング・ダイニング広さ 14.5帖
キッチン広さ 3.3帖
洋室1 広さ 6.5帖
+α広さ 0.5帖
和室有無 無し
リビング・ダイニング天井高 2,500mm
洋室1天井高 2,500mm
キッチンタイプ 対面型
システムキッチン形状 I型
キッチンアクセス 1way
浴室大きさ 1418
浴室開口 無し
玄関床 タイル
洋室床 フローリング
リビング・ダイニング床 フローリング
キッチン床 フローリング
床暖房
ウォークインクロゼット
モニター付インターホン
インターネット専用線
IHクッキングヒーター
ガスコンロ
食洗機
ディスポーザー
浄水器
洗浄機能付便座
浴室乾燥機
その他