| 所在地 | 東京都江東区豊洲4丁目9-13 | 建築年月 | 2005年12月 | 総戸数 | 981戸 |
|---|---|---|---|---|---|
| 交通 | 東京メトロ有楽町線「豊洲」駅 徒歩4分 /新交通ゆりかもめ「豊洲」駅 徒歩6分 | 構造 | (A・B・C・D棟)鉄骨鉄筋コンクリート造・地上20階塔屋1階建、(E・F棟)鉄筋コンクリート造・地上14階建 | ||
東京都江東区豊洲4丁目9-13
東京メトロ有楽町線「豊洲」 徒歩4分 /新交通ゆりかもめ「豊洲」 徒歩6分
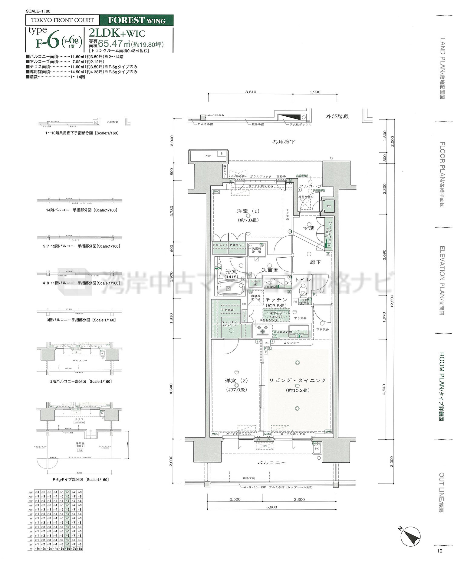
| 主要採光 | 南西 |
|---|---|
| 採光面数 | 2面 |
| 住戸位置 | 中 |
| バルコニー・テラス面積 | 11.60m² |
| ルーフバルコニー面積 | ― |
| 専用庭面積 | ― |
| リビング・ダイニング広さ | 10.2帖 |
| キッチン広さ | 3.5帖 |
| 洋室1 広さ | 7.0帖 |
| +α広さ | ― |
| 和室有無 | 無し |
| リビング・ダイニング天井高 | 2,600mm |
| 洋室1天井高 | 2,600mm |
| キッチンタイプ | 対面型 |
| システムキッチン形状 | I型 |
| キッチンアクセス | 1way |
| 浴室大きさ | 1418 |
| 浴室開口 | 無し |
| 玄関床 | 天然石貼(一部人工石) |
| 洋室床 | フローリング |
| リビング・ダイニング床 | フローリング |
| キッチン床 | フローリング |
| 床暖房 | ◯ |
| ウォークインクロゼット | ◯ |
| モニター付インターホン | ◯ |
| インターネット専用線 | ◯ |
| IHクッキングヒーター | ― |
| ガスコンロ | ◯ |
| 食洗機 | ― |
| ディスポーザー | ◯ |
| 浄水器 | ― |
| 洗浄機能付便座 | ◯ |
| 浴室乾燥機 | ◯ |
| その他 |