東京フロントコート

所在地 東京都江東区豊洲4丁目9-13 建築年月 2005年12月 総戸数981戸
交通 東京メトロ有楽町線「豊洲」駅 徒歩4分 /新交通ゆりかもめ「豊洲」駅 徒歩6分 構造(A・B・C・D棟)鉄骨鉄筋コンクリート造・地上20階塔屋1階建、(E・F棟)鉄筋コンクリート造・地上14階建
更新日:2026.02.06/次回更新日:2026.02.13
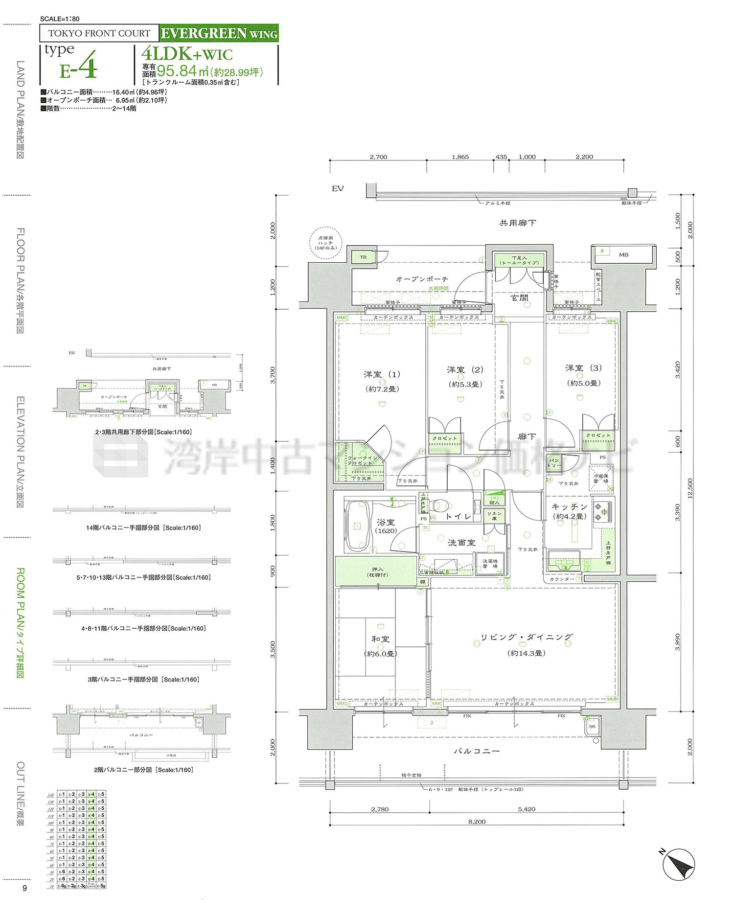
E-4 タイプ 間取り4LDK専有面積95.84m²
東京フロントコート
  • 所在地

    東京都江東区豊洲4丁目9-13

  • 最寄駅

    東京メトロ有楽町線「豊洲」 徒歩4分 /新交通ゆりかもめ「豊洲」 徒歩6分

主要採光 南西
採光面数 2面
住戸位置
バルコニー・テラス面積 16.40m²
ルーフバルコニー面積
専用庭面積
リビング・ダイニング広さ 14.3帖
キッチン広さ 4.2帖
洋室1 広さ 7.2帖
+α広さ
和室有無 有り
リビング・ダイニング天井高 2,600mm
洋室1天井高 2,600mm
キッチンタイプ 対面型
システムキッチン形状 L型
キッチンアクセス 1way
浴室大きさ 1620
浴室開口 無し
玄関床 天然石貼(一部人工石)
洋室床 フローリング
リビング・ダイニング床 フローリング
キッチン床 フローリング
床暖房
ウォークインクロゼット
モニター付インターホン
インターネット専用線
IHクッキングヒーター
ガスコンロ
食洗機
ディスポーザー
浄水器
洗浄機能付便座
浴室乾燥機
その他