| 所在地 | 東京都江東区豊洲5丁目6-10 | 建築年月 | 2000年2月 | 総戸数 | 247戸 |
|---|---|---|---|---|---|
| 交通 | 東京メトロ有楽町線「豊洲」駅 徒歩8分 /新交通ゆりかもめ「豊洲」駅 徒歩8分 | 構造 | 鉄骨鉄筋コンクリート造(一部鉄筋コンクリート造)・地上14階建 | ||
東京都江東区豊洲5丁目6-10
東京メトロ有楽町線「豊洲」 徒歩8分 /新交通ゆりかもめ「豊洲」 徒歩8分
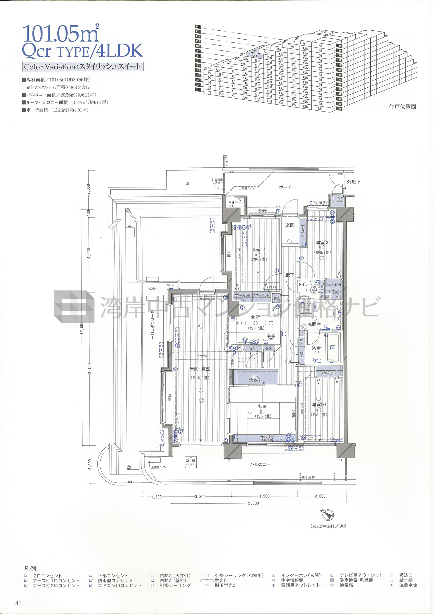
| 主要採光 | 南西 |
|---|---|
| 採光面数 | 3面 |
| 住戸位置 | 妻 |
| バルコニー・テラス面積 | 20.56m² |
| ルーフバルコニー面積 | 31.77m² |
| 専用庭面積 | ― |
| リビング・ダイニング広さ | 16.9帖 |
| キッチン広さ | 3.7帖 |
| 洋室1 広さ | 6.7帖 |
| +α広さ | ― |
| 和室有無 | 無し |
| リビング・ダイニング天井高 | 2,450mm |
| 洋室1天井高 | ― |
| キッチンタイプ | 独立型 |
| システムキッチン形状 | I型 |
| キッチンアクセス | 2way |
| 浴室大きさ | 1618 |
| 浴室開口 | 無し |
| 玄関床 | 硬質塩ビタイル |
| 洋室床 | フローリング |
| リビング・ダイニング床 | フローリング |
| キッチン床 | 長尺塩ビシート |
| 床暖房 | ― |
| ウォークインクロゼット | ― |
| モニター付インターホン | ― |
| インターネット専用線 | ◯ |
| IHクッキングヒーター | ― |
| ガスコンロ | ◯ |
| 食洗機 | ― |
| ディスポーザー | ― |
| 浄水器 | ― |
| 洗浄機能付便座 | ― |
| 浴室乾燥機 | ◯ |
| その他 |