オーベルグランディオ ベイ・フロント

所在地 東京都江東区豊洲5丁目6-10 建築年月 2000年2月 総戸数247戸
交通 東京メトロ有楽町線「豊洲」駅 徒歩8分 /新交通ゆりかもめ「豊洲」駅 徒歩8分 構造鉄骨鉄筋コンクリート造(一部鉄筋コンクリート造)・地上14階建
更新日:2026.05.15/次回更新日:2026.05.22
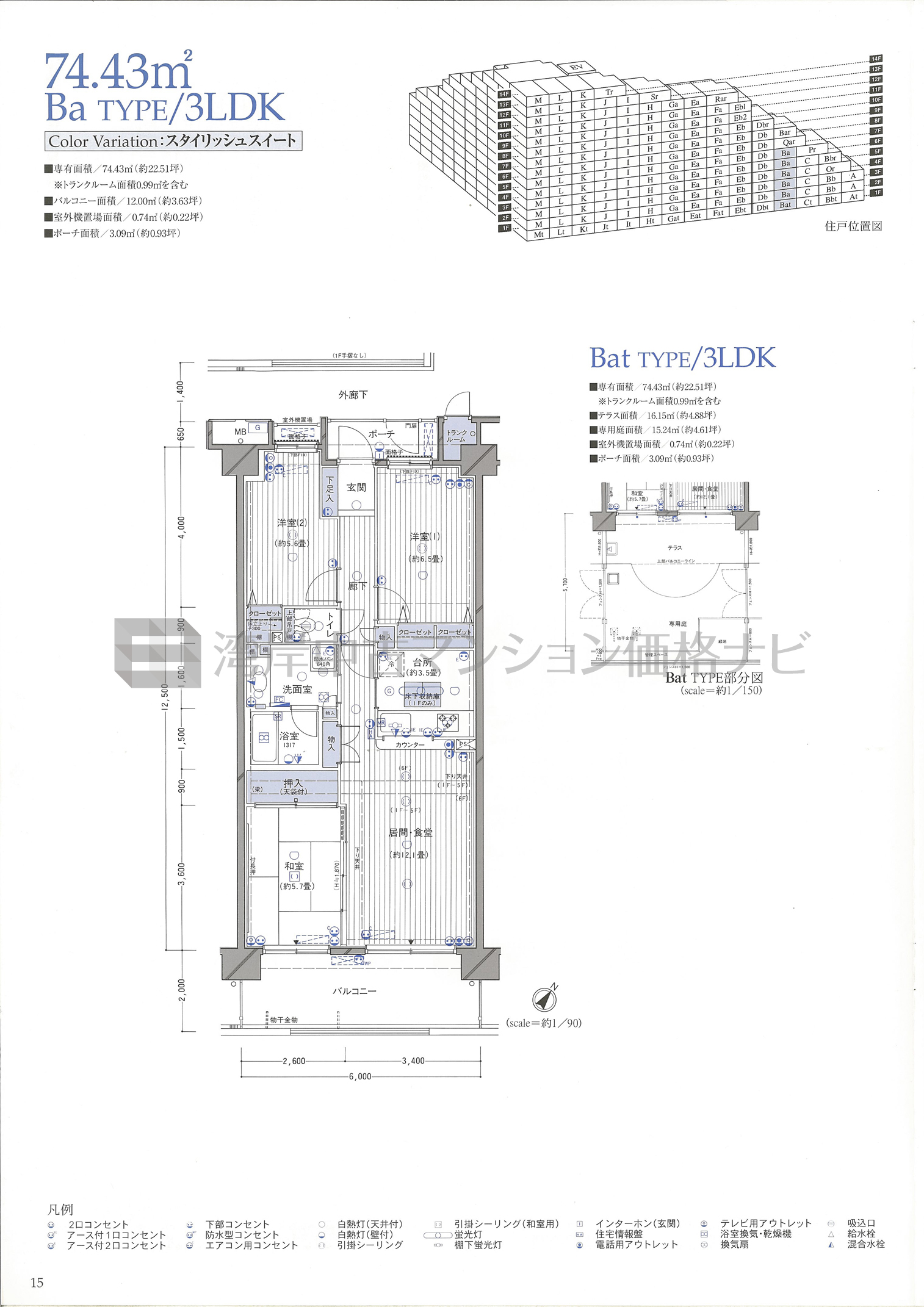
Ba タイプ 間取り3LDK専有面積74.43m²
オーベルグランディオ ベイ・フロント
  • 所在地

    東京都江東区豊洲5丁目6-10

  • 最寄駅

    東京メトロ有楽町線「豊洲」 徒歩8分 /新交通ゆりかもめ「豊洲」 徒歩8分

主要採光 南東
採光面数 2面
住戸位置
バルコニー・テラス面積 12.00m²
ルーフバルコニー面積
専用庭面積
リビング・ダイニング広さ 12.1帖
キッチン広さ 3.5帖
洋室1 広さ 6.5帖
+α広さ
和室有無 無し
リビング・ダイニング天井高 2,450mm
洋室1天井高
キッチンタイプ 対面型
システムキッチン形状 I型
キッチンアクセス 1way
浴室大きさ 1317
浴室開口 無し
玄関床 硬質塩ビタイル
洋室床 フローリング
リビング・ダイニング床 フローリング
キッチン床 長尺塩ビシート
床暖房
ウォークインクロゼット
モニター付インターホン
インターネット専用線
IHクッキングヒーター
ガスコンロ
食洗機
ディスポーザー
浄水器
洗浄機能付便座
浴室乾燥機
その他