| 所在地 | 東京都中央区勝どき5丁目3-1 | 建築年月 | 2016年12月 | 総戸数 | 1420戸 |
|---|---|---|---|---|---|
| 交通 | 都営大江戸線「勝どき」駅 徒歩6分 | 構造 | 鉄筋コンクリート造一部鉄骨造・地上53階地下2階搭屋1階建 | ||
東京都中央区勝どき5丁目3-1
都営大江戸線「勝どき」 徒歩6分
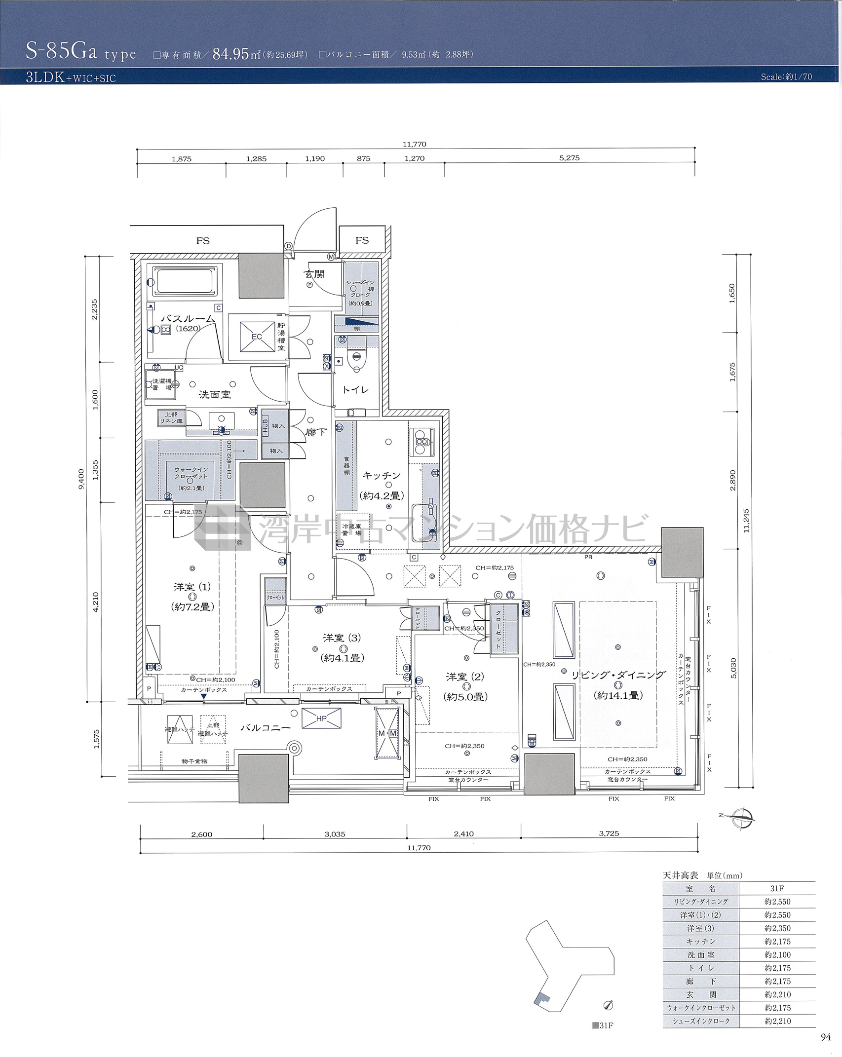
| 主要採光 | 西 |
|---|---|
| 採光面数 | 2面 |
| 住戸位置 | 角 |
| バルコニー・テラス面積 | 9.53m² |
| ルーフバルコニー面積 | ― |
| 専用庭面積 | ― |
| リビング・ダイニング広さ | 14.1帖 |
| キッチン広さ | 4.2帖 |
| 洋室1 広さ | 7.2帖 |
| +α広さ | 3.0帖 |
| 和室有無 | 無し |
| リビング・ダイニング天井高 | 2,550mm |
| 洋室1天井高 | 2,550mm |
| キッチンタイプ | 独立型 |
| システムキッチン形状 | I型 |
| キッチンアクセス | 1way |
| 浴室大きさ | 1620 |
| 浴室開口 | 無し |
| 玄関床 | 天然石 |
| 洋室床 | フローリング |
| リビング・ダイニング床 | フローリング |
| キッチン床 | フローリング |
| 床暖房 | ◯ |
| ウォークインクロゼット | ◯ |
| モニター付インターホン | ◯ |
| インターネット専用線 | ◯ |
| IHクッキングヒーター | ◯ |
| ガスコンロ | ― |
| 食洗機 | ◯ |
| ディスポーザー | ◯ |
| 浄水器 | ◯ |
| 洗浄機能付便座 | ◯ |
| 浴室乾燥機 | ◯ |
| その他 |