勝どき ザ・タワー(KACHIDOKI THE TOWER)

所在地 東京都中央区勝どき5丁目3-1 建築年月 2016年12月 総戸数1420戸
交通 都営大江戸線「勝どき」駅 徒歩6分 構造鉄筋コンクリート造一部鉄骨造・地上53階地下2階搭屋1階建
更新日:2026.05.15/次回更新日:2026.05.22
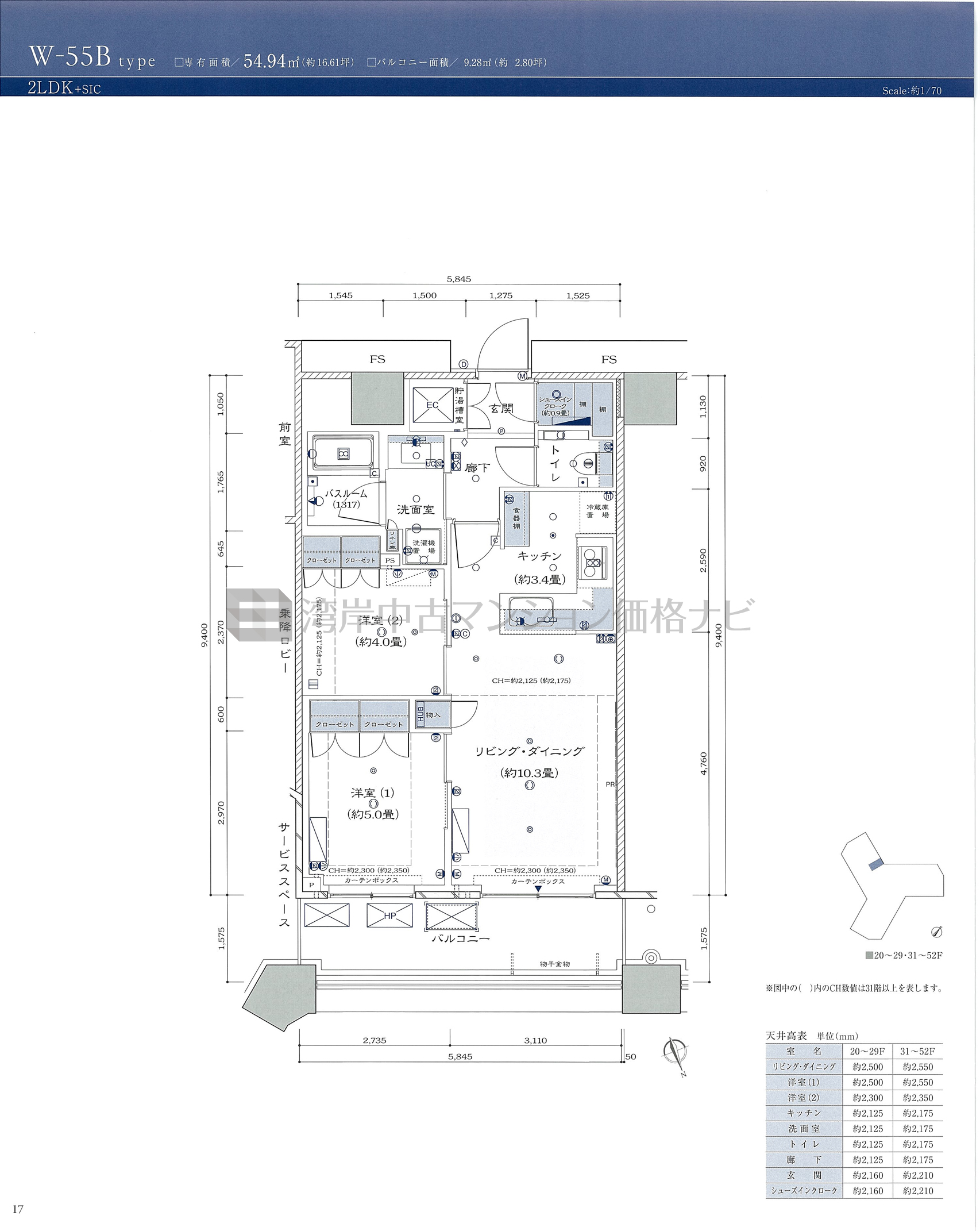
W-55B タイプ 間取り2LDK専有面積54.94m²
勝どき ザ・タワー
  • 所在地

    東京都中央区勝どき5丁目3-1

  • 最寄駅

    都営大江戸線「勝どき」 徒歩6分

主要採光 北東
採光面数 1面
住戸位置
バルコニー・テラス面積 9.28m²
ルーフバルコニー面積
専用庭面積
リビング・ダイニング広さ 10.3帖
キッチン広さ 3.4帖
洋室1 広さ 5.0帖
+α広さ 0.9帖
和室有無 無し
リビング・ダイニング天井高 2,500mm
洋室1天井高 2,500mm
キッチンタイプ 対面型
システムキッチン形状 L型
キッチンアクセス 1way
浴室大きさ 1317
浴室開口 無し
玄関床 天然石
洋室床 フローリング
リビング・ダイニング床 フローリング
キッチン床 フローリング
床暖房
ウォークインクロゼット
モニター付インターホン
インターネット専用線
IHクッキングヒーター
ガスコンロ
食洗機
ディスポーザー
浄水器
洗浄機能付便座
浴室乾燥機
その他