ベイズ タワー&ガーデン(BAYZ TOWER&GARDEN)

所在地 東京都江東区豊洲6丁目2-29 建築年月 2016年7月 総戸数550戸
交通 新交通ゆりかもめ「新豊洲」駅 徒歩6分 /東京メトロ有楽町線「豊洲」駅 徒歩11分 構造鉄筋コンクリート造一部鉄骨造・地上31階地下1階建
更新日:2026.01.09/次回更新日:2026.01.16
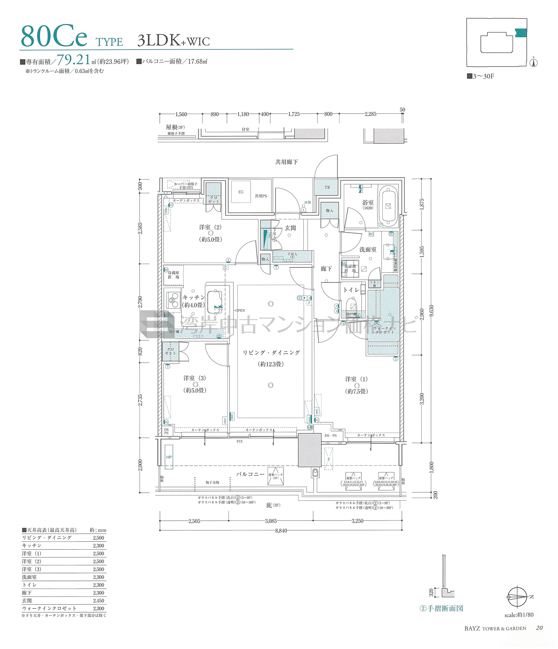
売出中住戸あり 80Ce タイプ 間取り3LDK専有面積79.21m²
ベイズ タワー&ガーデン
  • 所在地

    東京都江東区豊洲6丁目2-29

  • 最寄駅

    新交通ゆりかもめ「新豊洲」 徒歩6分 /東京メトロ有楽町線「豊洲」 徒歩11分

主要採光
採光面数 1面
住戸位置
バルコニー・テラス面積 17.68m²
ルーフバルコニー面積
専用庭面積
リビング・ダイニング広さ 12.3帖
キッチン広さ 4.0帖
洋室1 広さ 7.5帖
+α広さ
和室有無 無し
リビング・ダイニング天井高 2,500mm
洋室1天井高 2,500mm
キッチンタイプ 独立型
システムキッチン形状 U型
キッチンアクセス 1way
浴室大きさ 1620
浴室開口 無し
玄関床 タイル
洋室床 フローリング
リビング・ダイニング床 フローリング
キッチン床 フローリング
床暖房
ウォークインクロゼット
モニター付インターホン
インターネット専用線
IHクッキングヒーター
ガスコンロ
食洗機
ディスポーザー
浄水器
洗浄機能付便座
浴室乾燥機
その他