ガレリアグランデ

所在地 東京都江東区有明1丁目2-11 建築年月 2006年2月 総戸数413戸
交通 新交通ゆりかもめ「有明テニスの森」駅 徒歩7分 /りんかい線「国際展示場」駅 徒歩13分 /新交通ゆりかもめ「有明」駅 徒歩15分 構造鉄筋コンクリート造一部鉄骨造・地上27階地下1階建
更新日:2026.05.15/次回更新日:2026.05.22
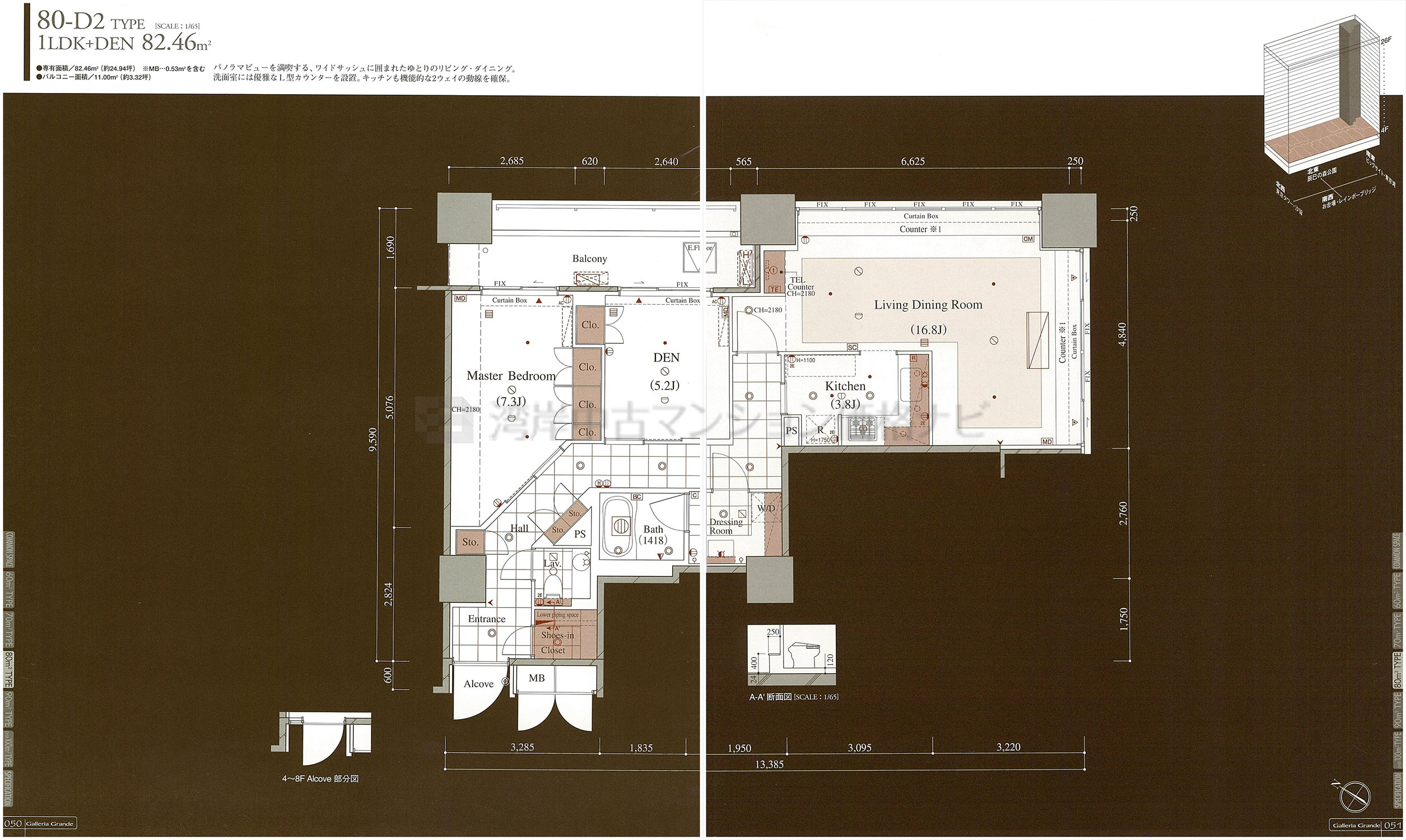
売出中住戸あり 80-D2 タイプ 間取り1LDK+α専有面積82.46m²
ガレリアグランデ
  • 所在地

    東京都江東区有明1丁目2-11

  • 最寄駅

    新交通ゆりかもめ「有明テニスの森」 徒歩7分 /りんかい線「国際展示場」 徒歩13分 /新交通ゆりかもめ「有明」 徒歩15分

主要採光 南東
採光面数 2面
住戸位置
バルコニー・テラス面積 11.00m²
ルーフバルコニー面積
専用庭面積
リビング・ダイニング広さ 16.8帖
キッチン広さ 3.8帖
洋室1 広さ 7.3帖
+α広さ 5.2帖
和室有無 無し
リビング・ダイニング天井高 2,480mm
洋室1天井高 2,480mm
キッチンタイプ 独立型
システムキッチン形状 L型
キッチンアクセス 2way
浴室大きさ 1418
浴室開口 無し
玄関床 天然石400角
洋室床 フローリング
リビング・ダイニング床 フローリング
キッチン床 フローリング
床暖房
ウォークインクロゼット
モニター付インターホン
インターネット専用線
IHクッキングヒーター
ガスコンロ
食洗機
ディスポーザー
浄水器
洗浄機能付便座
浴室乾燥機
その他