Wコンフォートタワーズ

所在地 東京都江東区東雲1丁目9番32号(EAST)
東京都江東区東雲1丁目9番31号(WEST)
建築年月 2004年12月(EAST)
2005年4月(WEST)
総戸数1149戸
交通 東京メトロ有楽町線「辰巳」駅 徒歩6分 /りんかい線「東雲」駅 徒歩8分 構造<EAST>鉄筋コンクリート造・地上54階地下2階塔屋1階建、<WEST>鉄筋コンクリート造・地上45階地下2階塔屋2階建
更新日:2026.05.29/次回更新日:2026.06.05
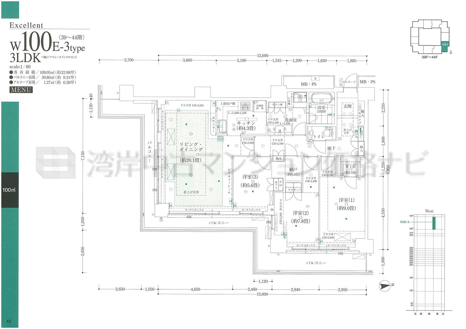
W100E-3 タイプ 間取り3LDK専有面積109.05m²
Wコンフォートタワーズ
  • 所在地

    東京都江東区東雲1丁目9

  • 最寄駅

    東京メトロ有楽町線「辰巳」 徒歩6分 /りんかい線「東雲」 徒歩8分

主要採光
採光面数 2面
住戸位置
バルコニー・テラス面積 30.80m²
ルーフバルコニー面積
専用庭面積
リビング・ダイニング広さ 20.1帖
キッチン広さ 4.3帖
洋室1 広さ 9.0帖
+α広さ
和室有無 無し
リビング・ダイニング天井高 2,650mm
洋室1天井高 2,600mm
キッチンタイプ 対面型
システムキッチン形状 L型
キッチンアクセス 2way
浴室大きさ 1620
浴室開口 無し
玄関床 大理石
洋室床 フローリング
リビング・ダイニング床 フローリング
キッチン床 フローリング
床暖房
ウォークインクロゼット
モニター付インターホン
インターネット専用線
IHクッキングヒーター
ガスコンロ
食洗機
ディスポーザー
浄水器
洗浄機能付便座
浴室乾燥機
その他