所在地 |
東京都江東区東雲1丁目9番32号(EAST) 東京都江東区東雲1丁目9番31号(WEST) |
建築年月 |
2004年12月(EAST) 2005年4月(WEST) |
総戸数 | 1149戸 |
---|---|---|---|---|---|
交通 | 東京メトロ有楽町線「辰巳」駅 徒歩6分 /りんかい線「東雲」駅 徒歩8分 | 構造 | <EAST>鉄筋コンクリート造・地上54階地下2階塔屋1階建、<WEST>鉄筋コンクリート造・地上45階地下2階塔屋2階建 |
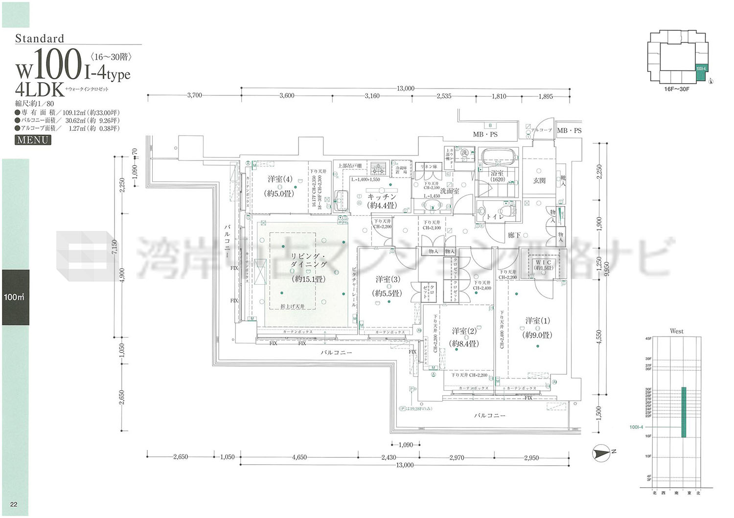
東京都江東区東雲1丁目9
東京メトロ有楽町線「辰巳」 徒歩6分 /りんかい線「東雲」 徒歩8分
主要採光 | 南 |
---|---|
採光面数 | 2面 |
住戸位置 | 角 |
バルコニー・テラス面積 | 30.62m² |
ルーフバルコニー面積 | ― |
専用庭面積 | ― |
リビング・ダイニング広さ | 15.1帖 |
キッチン広さ | 4.4帖 |
洋室1 広さ | 9.0帖 |
+α広さ | ― |
和室有無 | 無し |
リビング・ダイニング天井高 | 2,700mm |
洋室1天井高 | 2,650mm |
キッチンタイプ | 独立型 |
システムキッチン形状 | L型 |
キッチンアクセス | 2way |
浴室大きさ | 1620 |
浴室開口 | 無し |
玄関床 | 大理石 |
洋室床 | フローリング |
リビング・ダイニング床 | フローリング |
キッチン床 | フローリング |
床暖房 | ◯ |
ウォークインクロゼット | ◯ |
モニター付インターホン | ◯ |
インターネット専用線 | ◯ |
IHクッキングヒーター | ― |
ガスコンロ | ◯ |
食洗機 | ― |
ディスポーザー | ◯ |
浄水器 | ◯ |
洗浄機能付便座 | ◯ |
浴室乾燥機 | ◯ |
その他 |