| 所在地 |
東京都江東区東雲1丁目9番32号(EAST) 東京都江東区東雲1丁目9番31号(WEST) |
建築年月 |
2004年12月(EAST) 2005年4月(WEST) |
総戸数 | 1149戸 |
|---|---|---|---|---|---|
| 交通 | 東京メトロ有楽町線「辰巳」駅 徒歩6分 /りんかい線「東雲」駅 徒歩8分 | 構造 | <EAST>鉄筋コンクリート造・地上54階地下2階塔屋1階建、<WEST>鉄筋コンクリート造・地上45階地下2階塔屋2階建 | ||
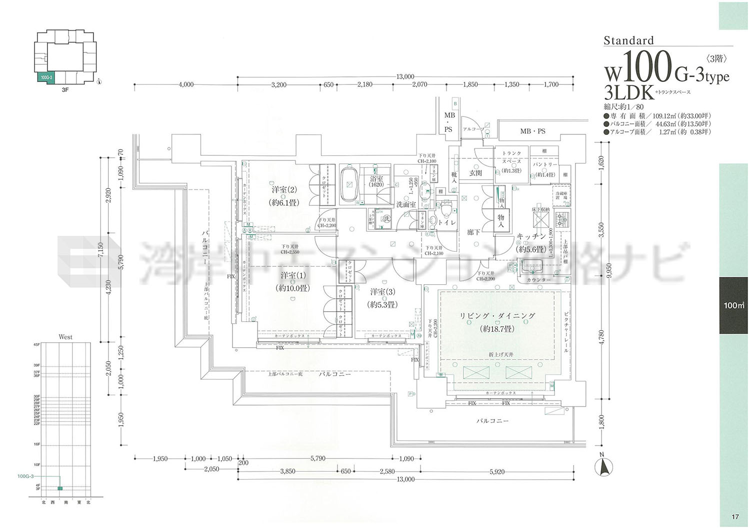
東京都江東区東雲1丁目9
東京メトロ有楽町線「辰巳」 徒歩6分 /りんかい線「東雲」 徒歩8分
| 主要採光 | 南 |
|---|---|
| 採光面数 | 2面 |
| 住戸位置 | 角 |
| バルコニー・テラス面積 | 44.63m² |
| ルーフバルコニー面積 | ― |
| 専用庭面積 | ― |
| リビング・ダイニング広さ | 18.7帖 |
| キッチン広さ | 5.6帖 |
| 洋室1 広さ | 10.0帖 |
| +α広さ | ― |
| 和室有無 | 無し |
| リビング・ダイニング天井高 | 2,700mm |
| 洋室1天井高 | 2,750mm |
| キッチンタイプ | 対面型 |
| システムキッチン形状 | L型 |
| キッチンアクセス | 2way |
| 浴室大きさ | 1620 |
| 浴室開口 | 無し |
| 玄関床 | 大理石 |
| 洋室床 | フローリング |
| リビング・ダイニング床 | フローリング |
| キッチン床 | フローリング |
| 床暖房 | ◯ |
| ウォークインクロゼット | ― |
| モニター付インターホン | ◯ |
| インターネット専用線 | ◯ |
| IHクッキングヒーター | ― |
| ガスコンロ | ◯ |
| 食洗機 | ― |
| ディスポーザー | ◯ |
| 浄水器 | ◯ |
| 洗浄機能付便座 | ◯ |
| 浴室乾燥機 | ◯ |
| その他 |