スターコート豊洲

所在地 東京都江東区豊洲4丁目11-20 建築年月 2007年2月 総戸数740戸
交通 東京メトロ有楽町線「豊洲」駅 徒歩4分 /新交通ゆりかもめ「豊洲」駅 徒歩5分 構造鉄骨鉄筋コンクリート造(一部鉄筋コンクリート造、一部鉄骨造)・地上18階建
更新日:2026.04.03/次回更新日:2026.04.10
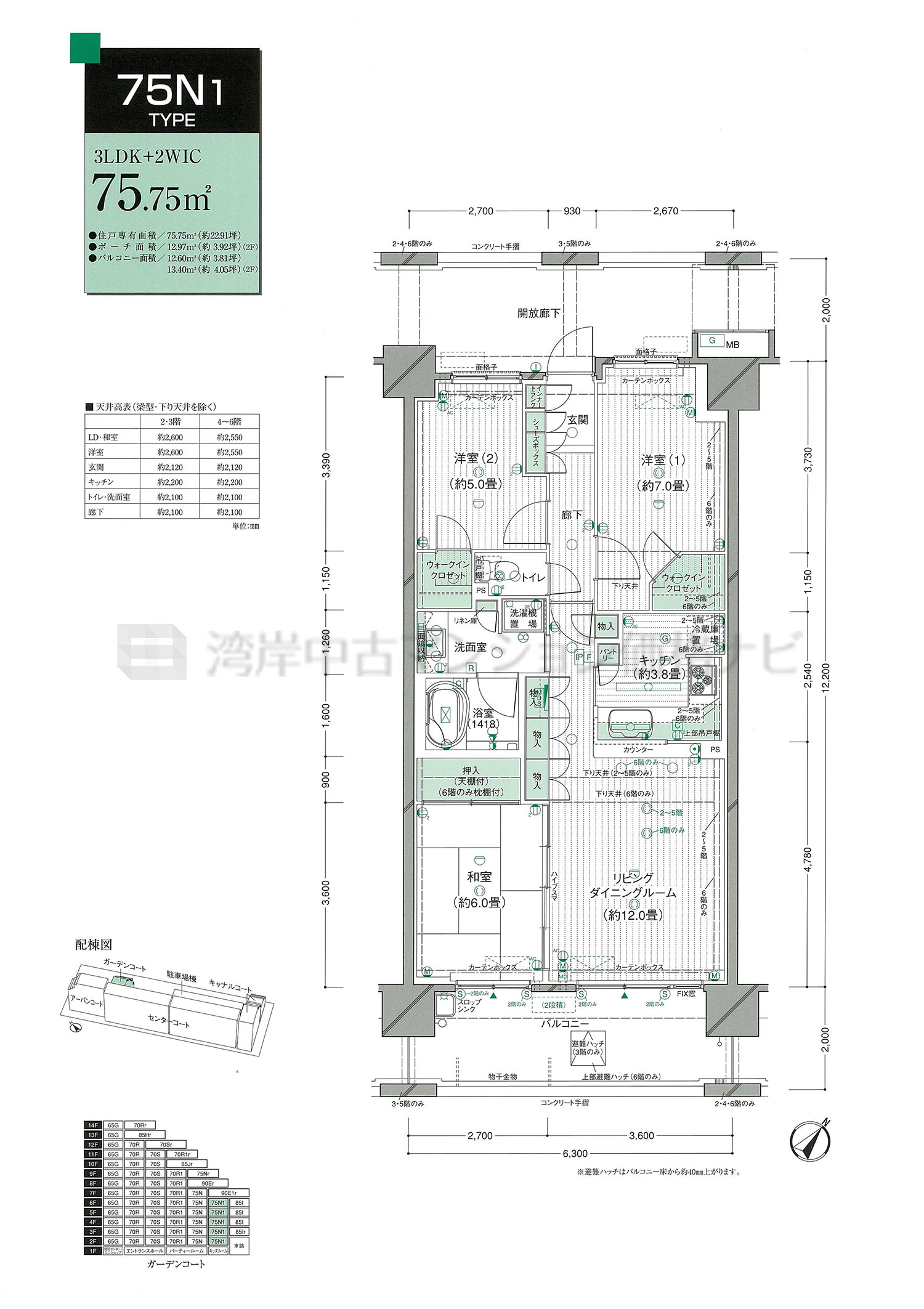
75N1 タイプ 間取り3LDK専有面積75.75m²
スターコート豊洲
  • 所在地

    東京都江東区豊洲4丁目11-20

  • 最寄駅

    東京メトロ有楽町線「豊洲」 徒歩4分 /新交通ゆりかもめ「豊洲」 徒歩5分

主要採光 南東
採光面数 2面
住戸位置
バルコニー・テラス面積 12.60m²
ルーフバルコニー面積
専用庭面積
リビング・ダイニング広さ 12.0帖
キッチン広さ 3.8帖
洋室1 広さ 7.0帖
+α広さ
和室有無 有り
リビング・ダイニング天井高 2,550mm
洋室1天井高 2,550mm
キッチンタイプ 対面型
システムキッチン形状 L型
キッチンアクセス 1way
浴室大きさ 1418
浴室開口 無し
玄関床 400角タイル
洋室床 フローリング
リビング・ダイニング床 フローリング
キッチン床 フローリング
床暖房
ウォークインクロゼット
モニター付インターホン
インターネット専用線
IHクッキングヒーター
ガスコンロ
食洗機
ディスポーザー
浄水器
洗浄機能付便座
浴室乾燥機
その他