| 所在地 | 東京都江東区豊洲4丁目11-35 | 建築年月 | 2014年2月 | 総戸数 | 168戸 | 
|---|---|---|---|---|---|
| 交通 | 東京メトロ有楽町線「豊洲」駅 徒歩8分 /新交通ゆりかもめ「豊洲」駅 徒歩9分 | 構造 | 鉄筋コンクリート造・地上13階建 | ||
東京都江東区豊洲4丁目11-35
東京メトロ有楽町線「豊洲」 徒歩8分 /新交通ゆりかもめ「豊洲」 徒歩9分
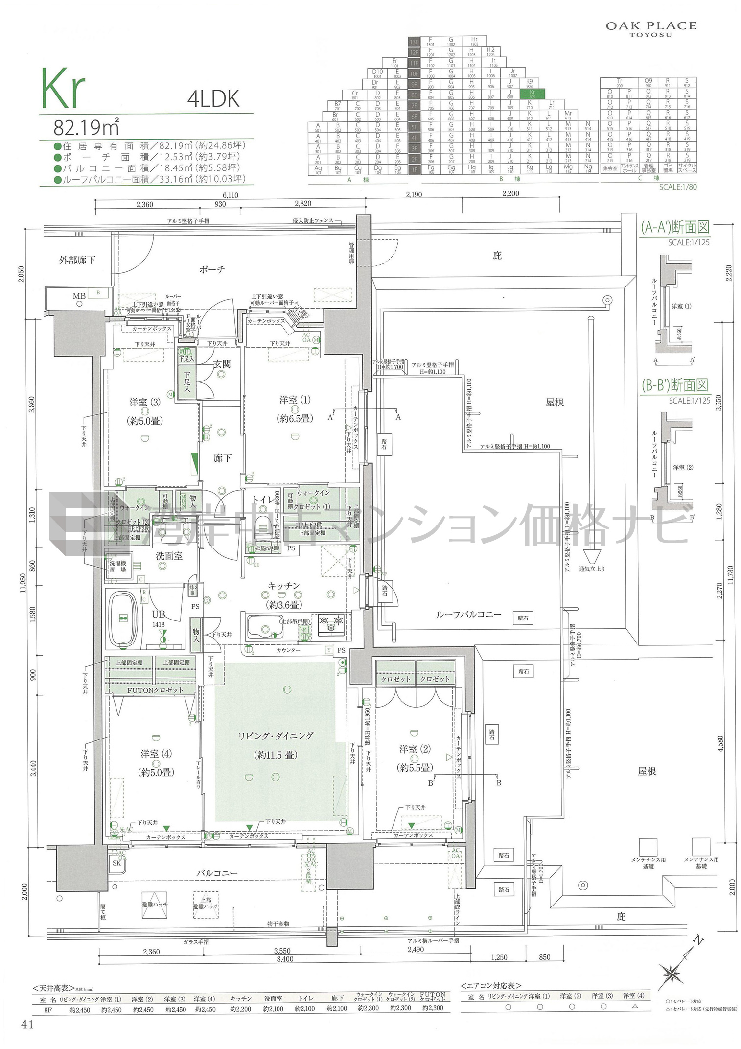
| 主要採光 | 南東 | 
|---|---|
| 採光面数 | 3面 | 
| 住戸位置 | 妻 | 
| バルコニー・テラス面積 | 18.45m² | 
| ルーフバルコニー面積 | 33.16m² | 
| 専用庭面積 | ― | 
| リビング・ダイニング広さ | 11.5帖 | 
| キッチン広さ | 3.6帖 | 
| 洋室1 広さ | 6.5帖 | 
| +α広さ | ― | 
| 和室有無 | 無し | 
| リビング・ダイニング天井高 | 2,450mm | 
| 洋室1天井高 | 2,450mm | 
| キッチンタイプ | 対面型 | 
| システムキッチン形状 | I型 | 
| キッチンアクセス | 2way | 
| 浴室大きさ | 1418 | 
| 浴室開口 | 無し | 
| 玄関床 | タイル | 
| 洋室床 | フローリング | 
| リビング・ダイニング床 | フローリング | 
| キッチン床 | フローリング | 
| 床暖房 | ◯ | 
| ウォークインクロゼット | ◯ | 
| モニター付インターホン | ◯ | 
| インターネット専用線 | ― | 
| IHクッキングヒーター | ― | 
| ガスコンロ | ◯ | 
| 食洗機 | ― | 
| ディスポーザー | ― | 
| 浄水器 | ◯ | 
| 洗浄機能付便座 | ◯ | 
| 浴室乾燥機 | ◯ | 
| その他 |