ザ・パークハウス 晴海タワーズ ティアロレジデンス

所在地 東京都中央区晴海2丁目3-2 建築年月 2016年5月 総戸数861戸
交通 東京メトロ有楽町線「月島」駅 徒歩13分 /都営大江戸線「勝どき」駅 徒歩13分 構造鉄筋コンクリート造一部鉄骨造(付属施設・塔屋)・地上49階地下2階塔屋1階建
更新日:2026.05.01/次回更新日:2026.05.15
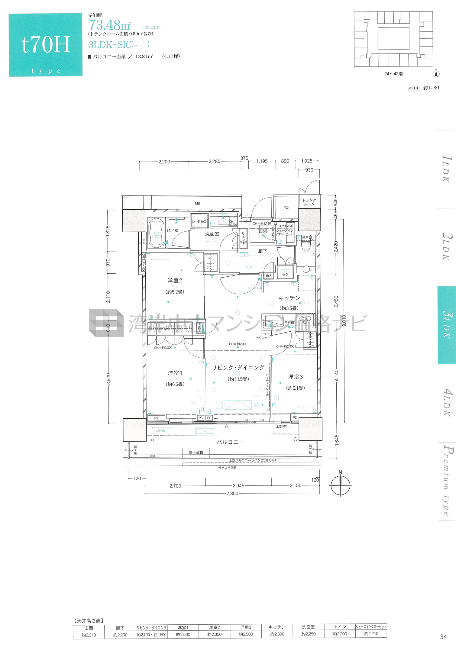
t70H タイプ 間取り3LDK専有面積73.48m²
ザ・パークハウス 晴海タワーズ ティアロレジデンス
  • 所在地

    東京都中央区晴海2丁目3-2

  • 最寄駅

    東京メトロ有楽町線「月島」 徒歩13分 /都営大江戸線「勝どき」 徒歩13分

主要採光
採光面数 1面
住戸位置
バルコニー・テラス面積 13.81m²
ルーフバルコニー面積
専用庭面積
リビング・ダイニング広さ 11.5帖
キッチン広さ 3.5帖
洋室1 広さ 6.5帖
+α広さ
和室有無 無し
リビング・ダイニング天井高 2,700mm
洋室1天井高 2,500mm
キッチンタイプ 独立型
システムキッチン形状 I型
キッチンアクセス 1way
浴室大きさ 1418
浴室開口 無し
玄関床 自然石
洋室床 フローリング
リビング・ダイニング床 フローリング
キッチン床 フローリング
床暖房
ウォークインクロゼット
モニター付インターホン
インターネット専用線
IHクッキングヒーター
ガスコンロ
食洗機
ディスポーザー
浄水器
洗浄機能付便座
浴室乾燥機
その他