キャピタルゲートプレイス ザ・タワー

  • 月島エリア全10件中 1
所在地 東京都中央区月島1丁目5-1 建築年月 2015年8月 総戸数702戸
交通 東京メトロ有楽町線「月島」駅 徒歩1分 /都営大江戸線「月島」駅 徒歩1分 構造鉄筋コンクリート造(一部鉄骨鉄筋コンクリート造)・地上53階地下2階搭屋1階建
更新日:2026.02.13/次回更新日:2026.02.20
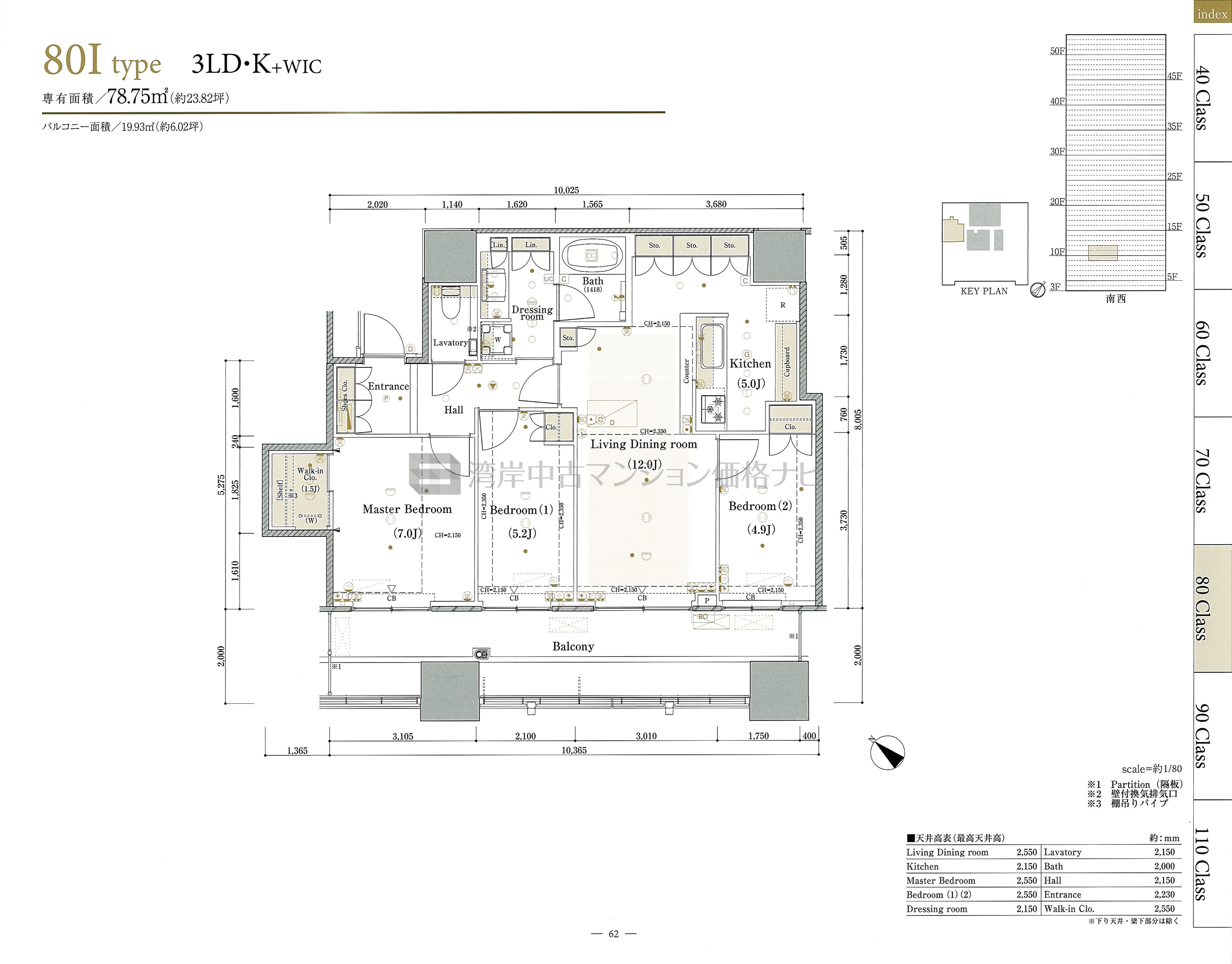
80I タイプ 間取り3LDK専有面積78.75m²
キャピタルゲートプレイス ザ・タワー
  • 所在地

    東京都中央区月島1丁目5-1

  • 最寄駅

    東京メトロ有楽町線「月島」 徒歩1分 /都営大江戸線「月島」 徒歩1分

主要採光 南西
採光面数 1面
住戸位置
バルコニー・テラス面積 19.93m²
ルーフバルコニー面積
専用庭面積
リビング・ダイニング広さ 12.0帖
キッチン広さ 5.0帖
洋室1 広さ 7.0帖
+α広さ
和室有無 無し
リビング・ダイニング天井高 2,550mm
洋室1天井高 2,550mm
キッチンタイプ 対面型
システムキッチン形状 I型
キッチンアクセス 1way
浴室大きさ 1418
浴室開口 無し
玄関床 タイル
洋室床 フローリング
リビング・ダイニング床 フローリング
キッチン床 フローリング
床暖房
ウォークインクロゼット
モニター付インターホン
インターネット専用線
IHクッキングヒーター
ガスコンロ
食洗機
ディスポーザー
浄水器
洗浄機能付便座
浴室乾燥機
その他