| 所在地 | 東京都江東区豊洲6丁目2-31 | 建築年月 | 2014年8月 | 総戸数 | 1110戸 |
|---|---|---|---|---|---|
| 交通 | 新交通ゆりかもめ「新豊洲」駅 徒歩5分 /東京メトロ有楽町線「豊洲」駅 徒歩12分 | 構造 | 鉄筋コンクリート造・地上44階地下2階塔屋2階建(住居棟)、地上3階建て(公益施設棟) | ||
東京都江東区豊洲6丁目2-31
新交通ゆりかもめ「新豊洲」 徒歩5分 /東京メトロ有楽町線「豊洲」 徒歩12分
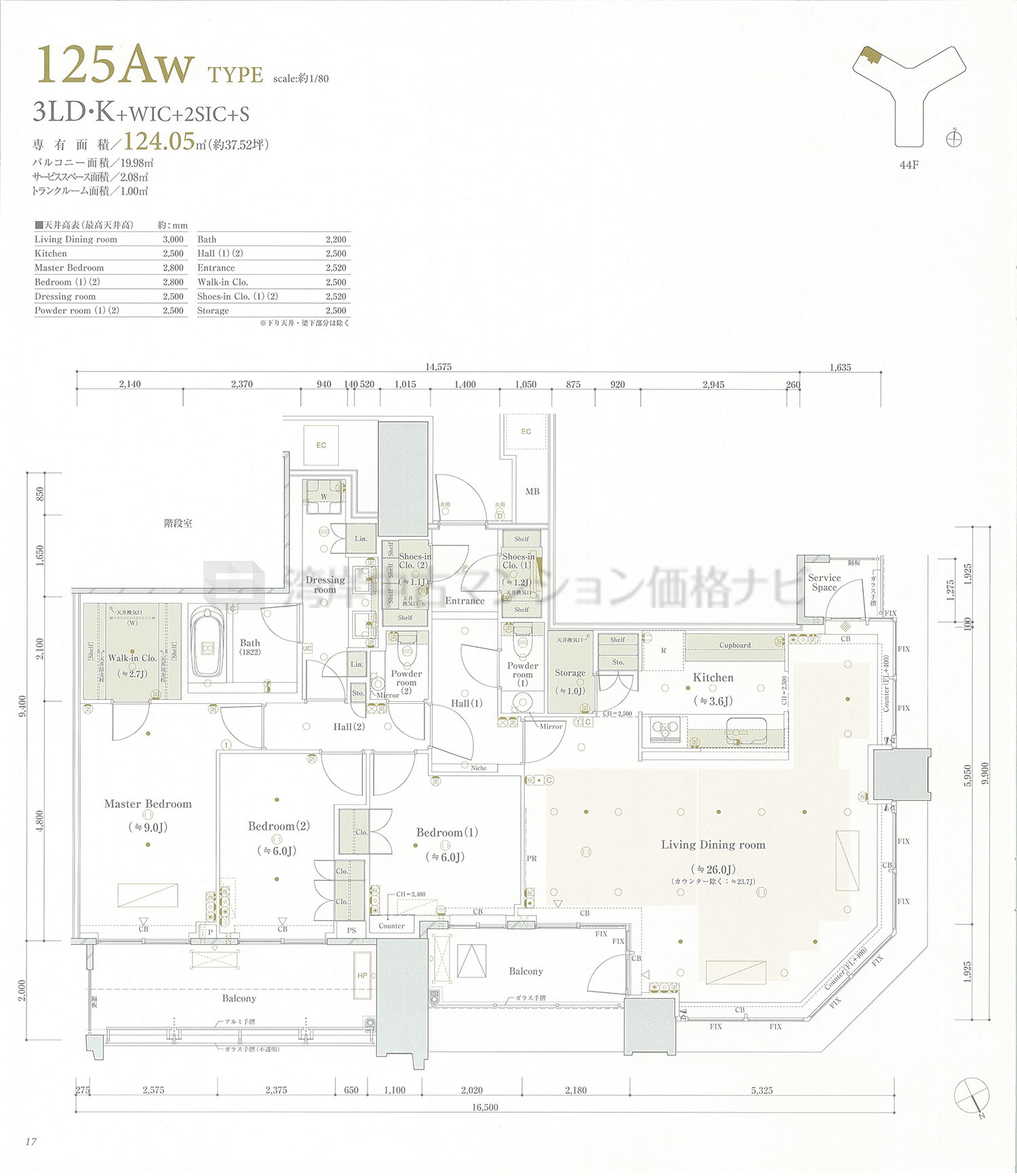
| 主要採光 | 北東 |
|---|---|
| 採光面数 | 2面 |
| 住戸位置 | 角 |
| バルコニー・テラス面積 | 19.98m² |
| ルーフバルコニー面積 | ― |
| 専用庭面積 | ― |
| リビング・ダイニング広さ | 26.0帖 |
| キッチン広さ | 3.6帖 |
| 洋室1 広さ | 9.0帖 |
| +α広さ | 2.7帖 |
| 和室有無 | 無し |
| リビング・ダイニング天井高 | 3,000mm |
| 洋室1天井高 | 2,800mm |
| キッチンタイプ | 対面型 |
| システムキッチン形状 | I型 |
| キッチンアクセス | 2way |
| 浴室大きさ | 1822 |
| 浴室開口 | 無し |
| 玄関床 | 天然石 |
| 洋室床 | フローリング |
| リビング・ダイニング床 | フローリング |
| キッチン床 | フローリング |
| 床暖房 | ◯ |
| ウォークインクロゼット | ◯ |
| モニター付インターホン | ◯ |
| インターネット専用線 | ◯ |
| IHクッキングヒーター | ◯ |
| ガスコンロ | ― |
| 食洗機 | ― |
| ディスポーザー | ◯ |
| 浄水器 | ◯ |
| 洗浄機能付便座 | ◯ |
| 浴室乾燥機 | ◯ |
| その他 |