| 所在地 | 東京都中央区築地6丁目2-12 | 建築年月 | 2021年10月 | 総戸数 | 161戸 |
|---|---|---|---|---|---|
| 交通 | 東京メトロ日比谷線「築地」駅 徒歩3分 /東京メトロ有楽町線「新富町」駅 徒歩7分 /都営大江戸線「築地市場」駅 徒歩8分 | 構造 | 鉄筋コンクリート造・地上11階 地下1階建 | ||
東京都中央区築地6丁目2-12
東京メトロ日比谷線「築地」 徒歩3分 /東京メトロ有楽町線「新富町」 徒歩7分 /都営大江戸線「築地市場」 徒歩8分
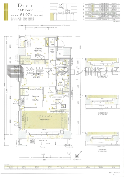
| 主要採光 | 南東 |
|---|---|
| 採光面数 | 2面 |
| 住戸位置 | 角 |
| バルコニー・テラス面積 | 9.26m² |
| ルーフバルコニー面積 | ― |
| 専用庭面積 | ― |
| リビング・ダイニング広さ | 16.1帖 |
| キッチン広さ | 3.7帖 |
| 洋室1 広さ | 7.1帖 |
| +α広さ | ― |
| 和室有無 | 無し |
| リビング・ダイニング天井高 | 2,500mm |
| 洋室1天井高 | 2,500mm |
| キッチンタイプ | 対面型 |
| システムキッチン形状 | I型 |
| キッチンアクセス | 1way |
| 浴室大きさ | 1616 |
| 浴室開口 | 無し |
| 玄関床 | 天然石 |
| 洋室床 | シートフローリング |
| リビング・ダイニング床 | シートフローリング |
| キッチン床 | シートフローリング |
| 床暖房 | ◯ |
| ウォークインクロゼット | ◯ |
| モニター付インターホン | ◯ |
| インターネット専用線 | ◯ |
| IHクッキングヒーター | ― |
| ガスコンロ | ◯ |
| 食洗機 | ◯ |
| ディスポーザー | ◯ |
| 浄水器 | ◯ |
| 洗浄機能付便座 | ◯ |
| 浴室乾燥機 | ◯ |
| その他 |