| 所在地 | 東京都江東区有明1丁目3-14 | 建築年月 | 2004年12月 | 総戸数 | 396戸 |
|---|---|---|---|---|---|
| 交通 | りんかい線「国際展示場」駅 徒歩9分 /新交通ゆりかもめ「有明」駅 徒歩11分 /新交通ゆりかもめ「有明テニスの森」駅 徒歩3分 | 構造 | 鉄筋コンクリート造一部鉄骨造・地上27階地下1階建 | ||
東京都江東区有明1丁目3-14
りんかい線「国際展示場」 徒歩9分 /新交通ゆりかもめ「有明」 徒歩11分 /新交通ゆりかもめ「有明テニスの森」 徒歩3分
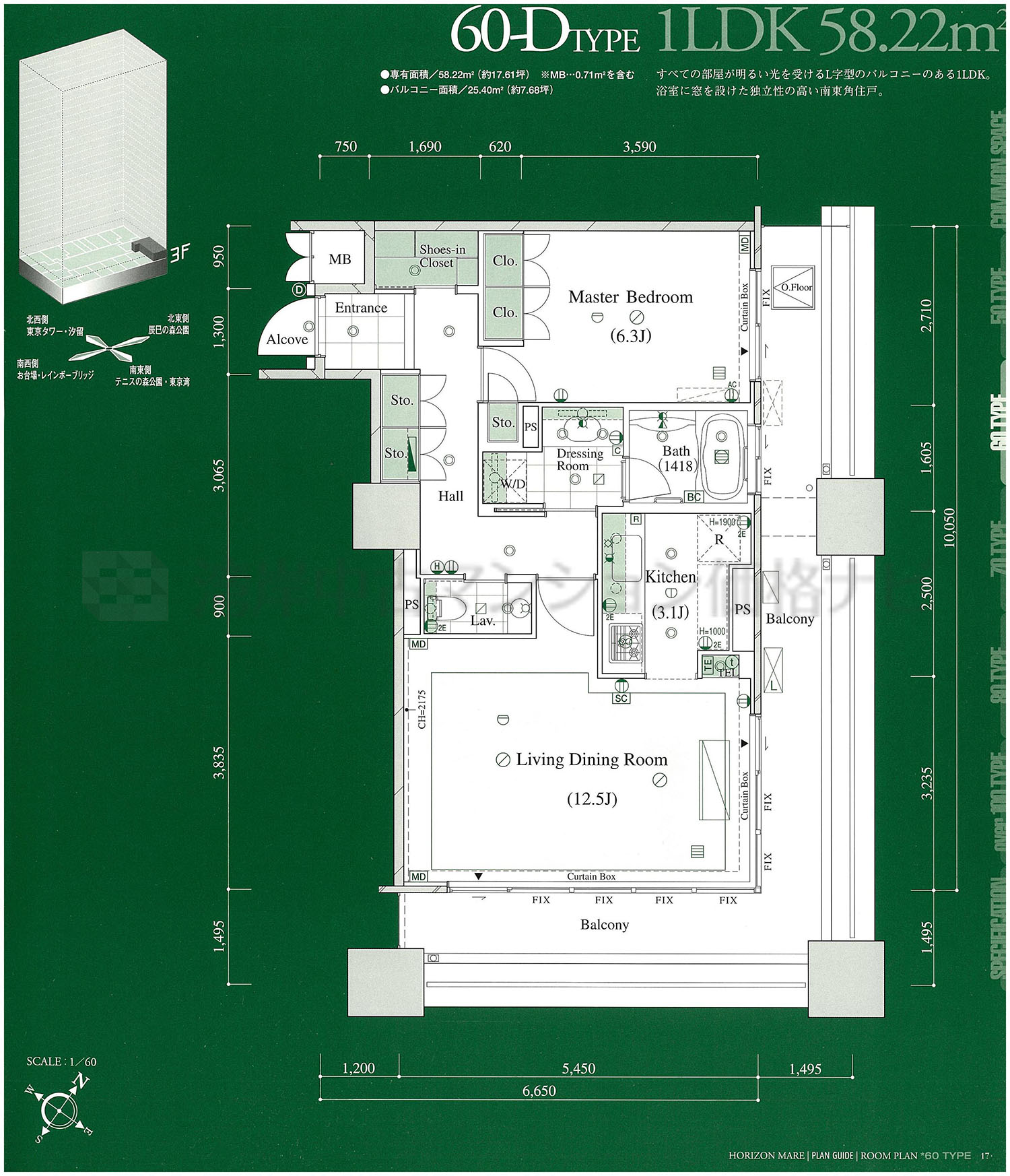
| 主要採光 | 南東 |
|---|---|
| 採光面数 | 2面 |
| 住戸位置 | 角 |
| バルコニー・テラス面積 | 25.40m² |
| ルーフバルコニー面積 | ― |
| 専用庭面積 | ― |
| リビング・ダイニング広さ | 12.5帖 |
| キッチン広さ | 3.1帖 |
| 洋室1 広さ | 6.3帖 |
| +α広さ | ― |
| 和室有無 | 無し |
| リビング・ダイニング天井高 | 2,700mm |
| 洋室1天井高 | 2,500mm |
| キッチンタイプ | 独立型 |
| システムキッチン形状 | I型 |
| キッチンアクセス | 1way |
| 浴室大きさ | 1418 |
| 浴室開口 | 有り |
| 玄関床 | 天然石400角 |
| 洋室床 | フローリング又は麻フロア |
| リビング・ダイニング床 | フローリング又は麻フロア |
| キッチン床 | 天然石400角又はフローリング |
| 床暖房 | ◯ |
| ウォークインクロゼット | ― |
| モニター付インターホン | ◯ |
| インターネット専用線 | ◯ |
| IHクッキングヒーター | ― |
| ガスコンロ | ◯ |
| 食洗機 | ― |
| ディスポーザー | ◯ |
| 浄水器 | ◯ |
| 洗浄機能付便座 | ◯ |
| 浴室乾燥機 | ◯ |
| その他 |