アーバンドック パークシティ 豊洲タワーB

所在地 東京都江東区豊洲2丁目5-2 建築年月 2007年11月 総戸数420戸
交通 東京メトロ有楽町線「豊洲」駅 徒歩6分 /新交通ゆりかもめ「豊洲」駅 徒歩7分 /都営大江戸線「月島」駅 徒歩13分 構造鉄筋コンクリート造一部鉄骨造・鉄骨鉄筋コンクリート造・地上32階地下1階建
更新日:2025.12.12/次回更新日:2025.12.19
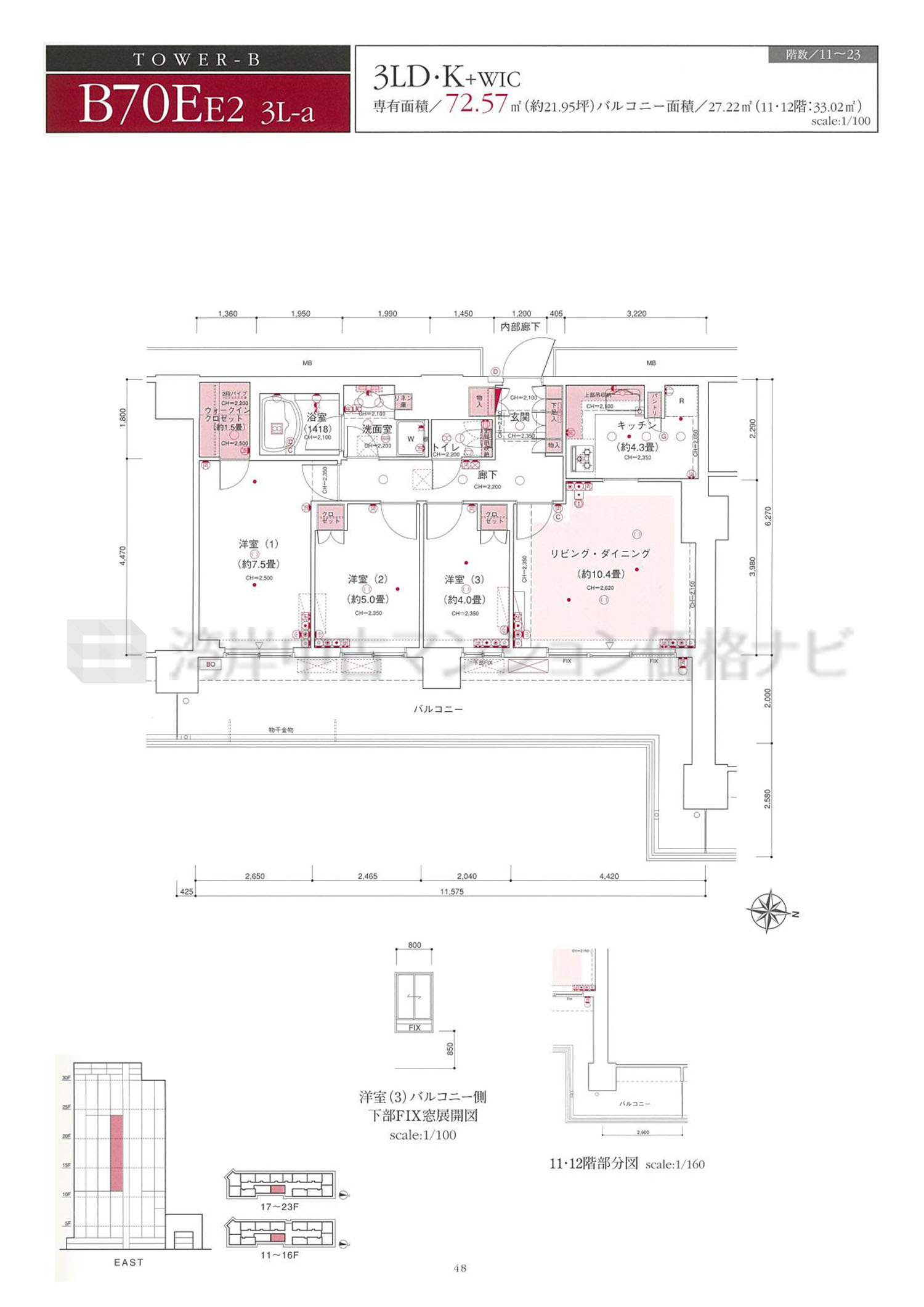
B70EE2 タイプ 間取り3LDK専有面積72.57m²
アーバンドック パークシティ 豊洲タワーB
  • 所在地

    東京都江東区豊洲2丁目5-2

  • 最寄駅

    東京メトロ有楽町線「豊洲」 徒歩6分 /新交通ゆりかもめ「豊洲」 徒歩7分 /都営大江戸線「月島」 徒歩13分

主要採光
採光面数 1面
住戸位置
バルコニー・テラス面積 33.02m²
ルーフバルコニー面積
専用庭面積
リビング・ダイニング広さ 10.4帖
キッチン広さ 4.3帖
洋室1 広さ 7.5帖
+α広さ
和室有無 無し
リビング・ダイニング天井高 2,620mm
洋室1天井高 2,500mm
キッチンタイプ 独立型
システムキッチン形状 L型
キッチンアクセス 1way
浴室大きさ 1418
浴室開口 無し
玄関床
洋室床 シートフローリング
リビング・ダイニング床 シートフローリング
キッチン床 シートフローリング
床暖房
ウォークインクロゼット
モニター付インターホン
インターネット専用線
IHクッキングヒーター
ガスコンロ
食洗機
ディスポーザー
浄水器
洗浄機能付便座
浴室乾燥機
その他