| 所在地 | 東京都江東区豊洲2丁目5-2 | 建築年月 | 2007年11月 | 総戸数 | 420戸 |
|---|---|---|---|---|---|
| 交通 | 東京メトロ有楽町線「豊洲」駅 徒歩6分 /新交通ゆりかもめ「豊洲」駅 徒歩7分 /都営大江戸線「月島」駅 徒歩13分 | 構造 | 鉄筋コンクリート造一部鉄骨造・鉄骨鉄筋コンクリート造・地上32階地下1階建 | ||
東京都江東区豊洲2丁目5-2
東京メトロ有楽町線「豊洲」 徒歩6分 /新交通ゆりかもめ「豊洲」 徒歩7分 /都営大江戸線「月島」 徒歩13分
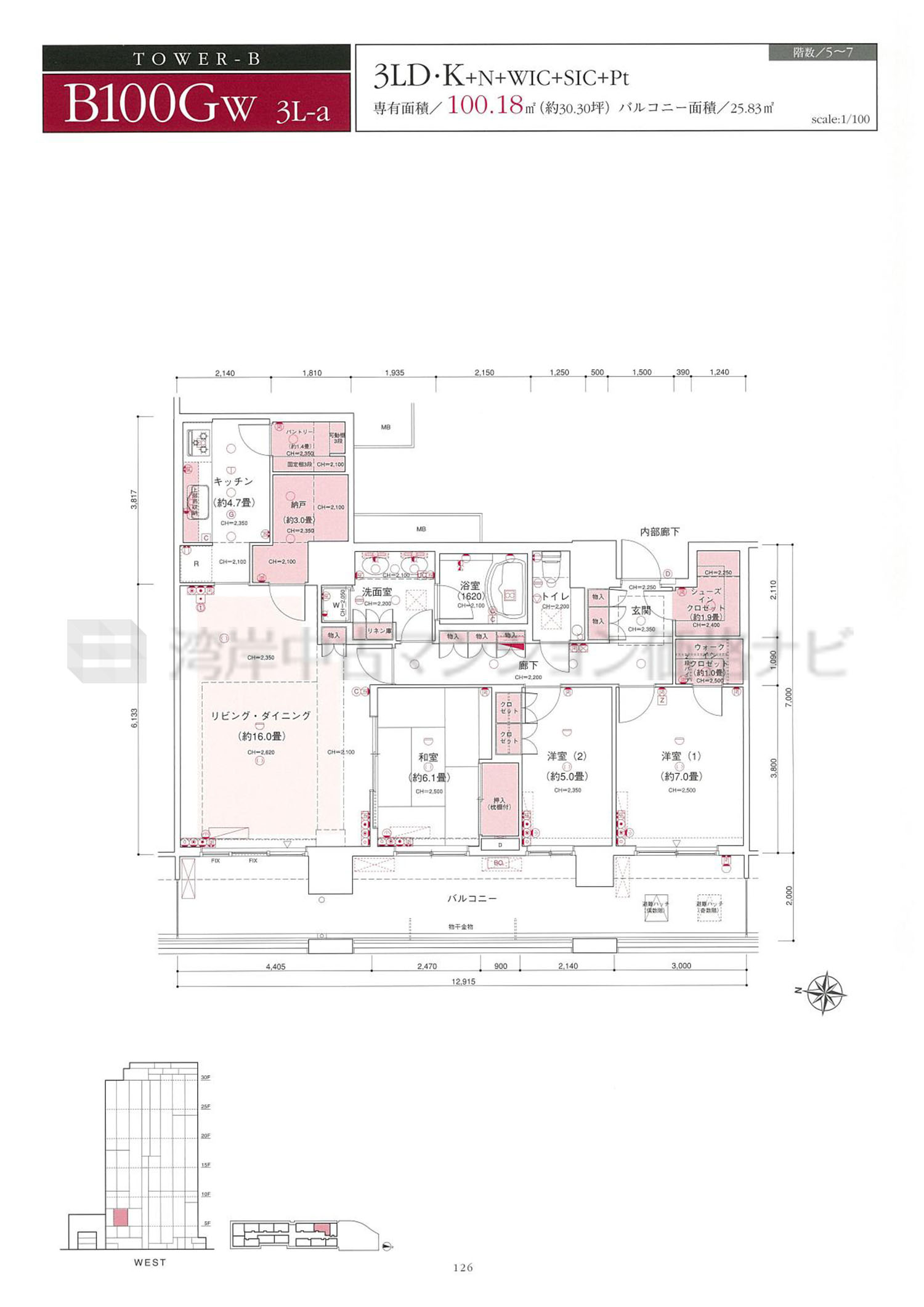
| 主要採光 | 西 |
|---|---|
| 採光面数 | 1面 |
| 住戸位置 | 中 |
| バルコニー・テラス面積 | 25.83m² |
| ルーフバルコニー面積 | ― |
| 専用庭面積 | ― |
| リビング・ダイニング広さ | 16.0帖 |
| キッチン広さ | 4.7帖 |
| 洋室1 広さ | 7.0帖 |
| +α広さ | 3.0帖 |
| 和室有無 | 有り |
| リビング・ダイニング天井高 | 2,620mm |
| 洋室1天井高 | 2,500mm |
| キッチンタイプ | 独立型 |
| システムキッチン形状 | I型 |
| キッチンアクセス | 1way |
| 浴室大きさ | 1620 |
| 浴室開口 | 無し |
| 玄関床 | 石 |
| 洋室床 | シートフローリング |
| リビング・ダイニング床 | シートフローリング |
| キッチン床 | シートフローリング |
| 床暖房 | ◯ |
| ウォークインクロゼット | ◯ |
| モニター付インターホン | ◯ |
| インターネット専用線 | ◯ |
| IHクッキングヒーター | ― |
| ガスコンロ | ◯ |
| 食洗機 | ― |
| ディスポーザー | ◯ |
| 浄水器 | ◯ |
| 洗浄機能付便座 | ◯ |
| 浴室乾燥機 | ◯ |
| その他 |