バンベールルフォン辰巳

所在地 東京都江東区辰巳1丁目5-13 建築年月 2012年12月 総戸数131戸
交通 東京メトロ有楽町線「辰巳」駅 徒歩10分 /JR京葉線「潮見」駅 徒歩17分 構造鉄筋コンクリート造・地上17階地下1階塔屋1階建
更新日:2026.05.01/次回更新日:2026.05.15
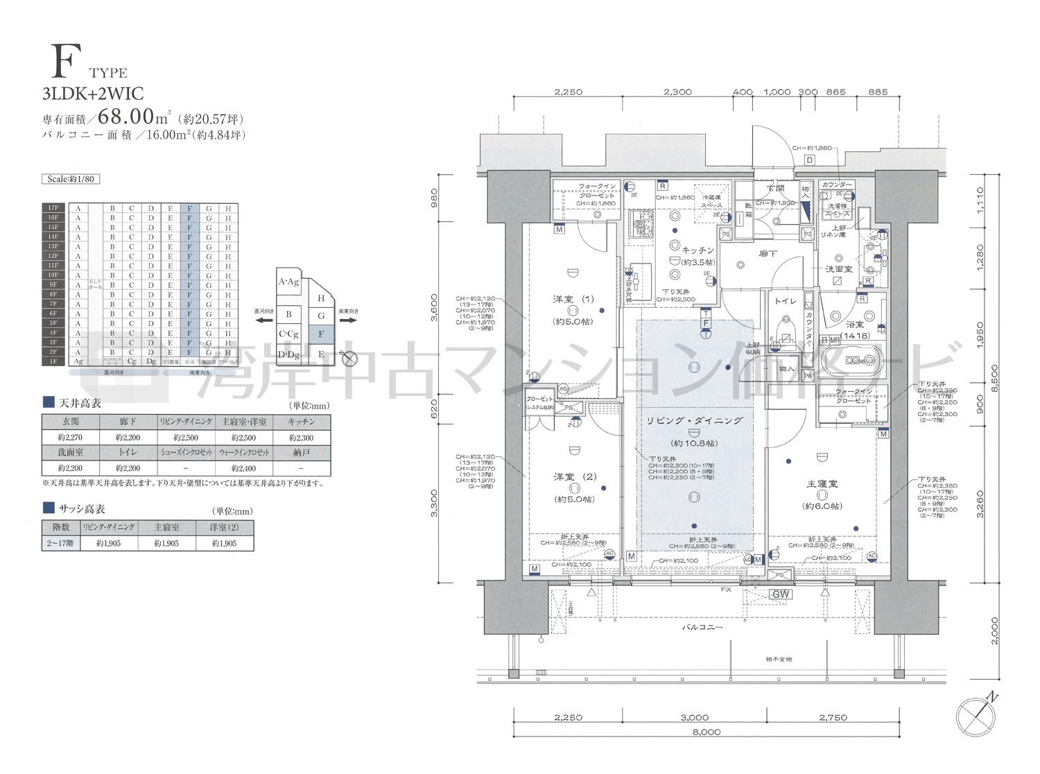
F タイプ 間取り3LDK専有面積68.00m²
バンベールルフォン辰巳
  • 所在地

    東京都江東区辰巳1丁目5-13

  • 最寄駅

    東京メトロ有楽町線「辰巳」 徒歩10分 /JR京葉線「潮見」 徒歩17分

主要採光 南東
採光面数 1面
住戸位置
バルコニー・テラス面積 16.00m²
ルーフバルコニー面積
専用庭面積
リビング・ダイニング広さ 10.8帖
キッチン広さ 3.5帖
洋室1 広さ 6.0帖
+α広さ
和室有無 無し
リビング・ダイニング天井高 2,500mm
洋室1天井高 2,500mm
キッチンタイプ 独立型
システムキッチン形状 I型
キッチンアクセス 1way
浴室大きさ 1418
浴室開口 無し
玄関床 磁器質タイル貼
洋室床 シートフローリング貼
リビング・ダイニング床 シートフローリング貼
キッチン床 シートフローリング貼
床暖房
ウォークインクロゼット
モニター付インターホン
インターネット専用線
IHクッキングヒーター
ガスコンロ
食洗機
ディスポーザー
浄水器
洗浄機能付便座
浴室乾燥機
その他