| 所在地 | 東京都江東区有明1丁目4-20 | 建築年月 | 2011年3月 | 総戸数 | 1089戸 |
|---|---|---|---|---|---|
| 交通 | 新交通ゆりかもめ「有明テニスの森」駅 徒歩7分 /りんかい線「国際展示場」駅 徒歩9分 /新交通ゆりかもめ「お台場海浜公園」駅 徒歩12分 | 構造 | 鉄筋コンクリート造一部鉄骨造・地上33階地下1階塔屋1階建 | ||
東京都江東区有明1丁目4-20
新交通ゆりかもめ「有明テニスの森」 徒歩7分 /りんかい線「国際展示場」 徒歩9分 /新交通ゆりかもめ「お台場海浜公園」 徒歩12分
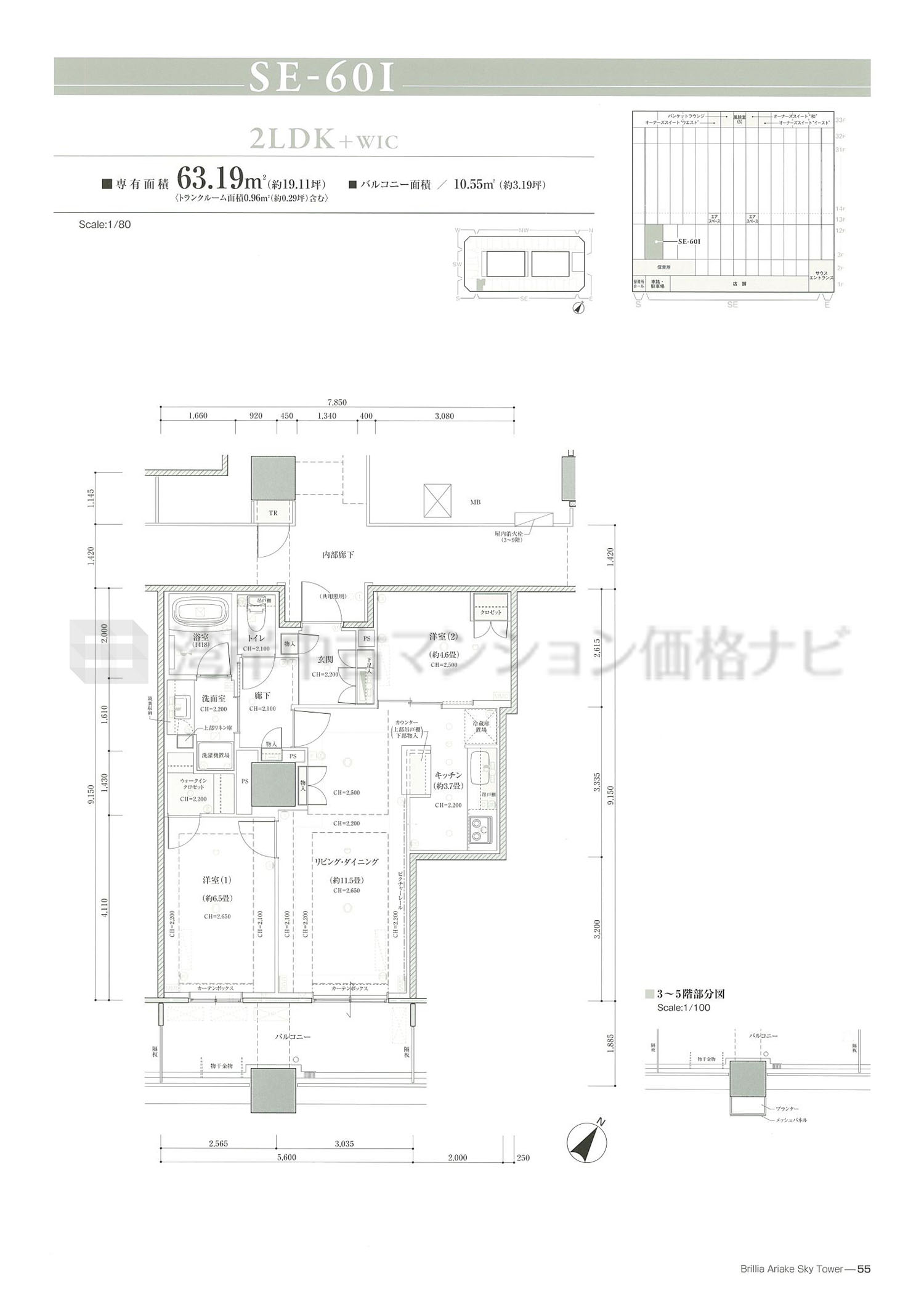
| 主要採光 | 南東 |
|---|---|
| 採光面数 | 1面 |
| 住戸位置 | 中 |
| バルコニー・テラス面積 | 10.55m² |
| ルーフバルコニー面積 | ― |
| 専用庭面積 | ― |
| リビング・ダイニング広さ | 11.5帖 |
| キッチン広さ | 3.7帖 |
| 洋室1 広さ | 6.5帖 |
| +α広さ | ― |
| 和室有無 | 無し |
| リビング・ダイニング天井高 | 2,650mm |
| 洋室1天井高 | 2,650mm |
| キッチンタイプ | オープン型 |
| システムキッチン形状 | I型 |
| キッチンアクセス | 1way |
| 浴室大きさ | 1418 |
| 浴室開口 | 無し |
| 玄関床 | 磁器質タイル |
| 洋室床 | シートフローリング |
| リビング・ダイニング床 | シートフローリング |
| キッチン床 | シートフローリング |
| 床暖房 | ◯ |
| ウォークインクロゼット | ◯ |
| モニター付インターホン | ◯ |
| インターネット専用線 | ◯ |
| IHクッキングヒーター | ◯ |
| ガスコンロ | ― |
| 食洗機 | ― |
| ディスポーザー | ◯ |
| 浄水器 | ◯ |
| 洗浄機能付便座 | ◯ |
| 浴室乾燥機 | ◯ |
| その他 |