Brillia 有明 SkyTower(ブリリア有明スカイタワー)

所在地 東京都江東区有明1丁目4-20 建築年月 2011年3月 総戸数1089戸
交通 新交通ゆりかもめ「有明テニスの森」駅 徒歩7分 /りんかい線「国際展示場」駅 徒歩9分 /新交通ゆりかもめ「お台場海浜公園」駅 徒歩12分 構造鉄筋コンクリート造一部鉄骨造・地上33階地下1階塔屋1階建
更新日:2026.01.30/次回更新日:2026.02.06
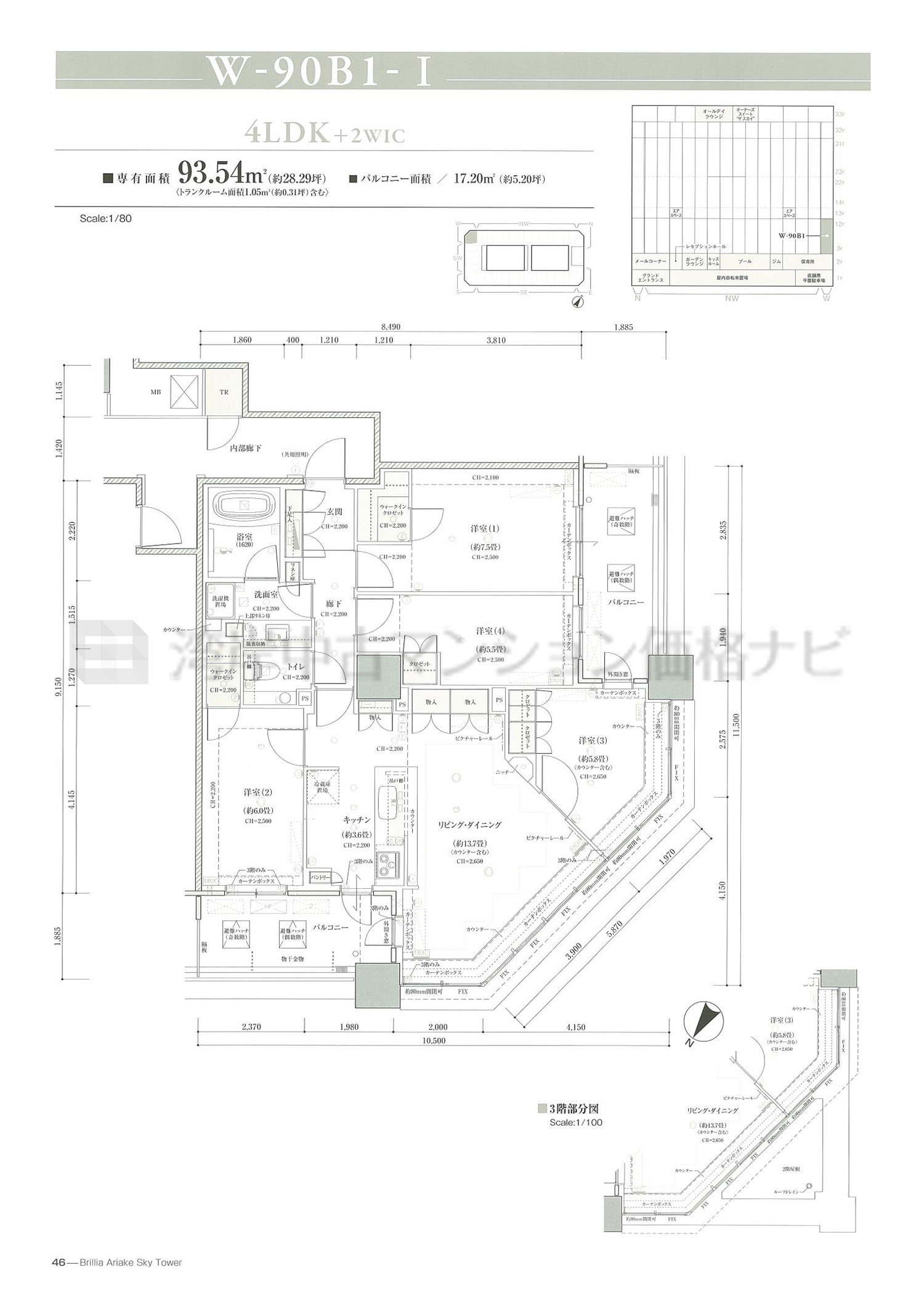
W-90B1 タイプ 間取り4LDK専有面積93.54m²
Brillia 有明 SkyTower
  • 所在地

    東京都江東区有明1丁目4-20

  • 最寄駅

    新交通ゆりかもめ「有明テニスの森」 徒歩7分 /りんかい線「国際展示場」 徒歩9分 /新交通ゆりかもめ「お台場海浜公園」 徒歩12分

主要採光 西
採光面数 3面
住戸位置
バルコニー・テラス面積 17.20m²
ルーフバルコニー面積
専用庭面積
リビング・ダイニング広さ 13.7帖
キッチン広さ 3.6帖
洋室1 広さ 7.5帖
+α広さ
和室有無 無し
リビング・ダイニング天井高 2,650mm
洋室1天井高 2,500mm
キッチンタイプ 対面型
システムキッチン形状 I型
キッチンアクセス 1way
浴室大きさ 1620
浴室開口 無し
玄関床 磁器質タイル
洋室床 シートフローリング
リビング・ダイニング床 シートフローリング
キッチン床 シートフローリング
床暖房
ウォークインクロゼット
モニター付インターホン
インターネット専用線
IHクッキングヒーター
ガスコンロ
食洗機
ディスポーザー
浄水器
洗浄機能付便座
浴室乾燥機
その他