所在地 | 東京都江東区有明1丁目4-20 | 建築年月 | 2011年3月 | 総戸数 | 1089戸 |
---|---|---|---|---|---|
交通 | 新交通ゆりかもめ「有明テニスの森」駅 徒歩7分 /りんかい線「国際展示場」駅 徒歩9分 /新交通ゆりかもめ「お台場海浜公園」駅 徒歩12分 | 構造 | 鉄筋コンクリート造一部鉄骨造・地上33階地下1階塔屋1階建 |
東京都江東区有明1丁目4-20
新交通ゆりかもめ「有明テニスの森」 徒歩7分 /りんかい線「国際展示場」 徒歩9分 /新交通ゆりかもめ「お台場海浜公園」 徒歩12分
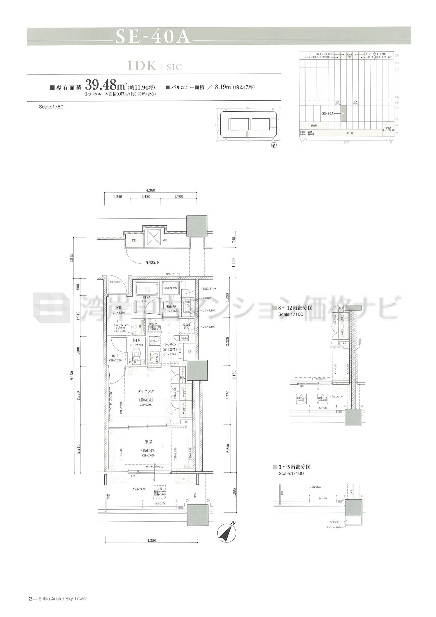
主要採光 | 南東 |
---|---|
採光面数 | 1面 |
住戸位置 | 中 |
バルコニー・テラス面積 | 8.19m² |
ルーフバルコニー面積 | ― |
専用庭面積 | ― |
リビング・ダイニング広さ | 6.0帖 |
キッチン広さ | 2.3帖 |
洋室1 広さ | 6.0帖 |
+α広さ | ― |
和室有無 | 無し |
リビング・ダイニング天井高 | 2,500mm |
洋室1天井高 | 2,650mm |
キッチンタイプ | 独立型 |
システムキッチン形状 | I型 |
キッチンアクセス | 1way |
浴室大きさ | 1216 |
浴室開口 | 無し |
玄関床 | 磁器質タイル |
洋室床 | シートフローリング |
リビング・ダイニング床 | シートフローリング |
キッチン床 | シートフローリング |
床暖房 | ◯ |
ウォークインクロゼット | ― |
モニター付インターホン | ◯ |
インターネット専用線 | ◯ |
IHクッキングヒーター | ◯ |
ガスコンロ | ― |
食洗機 | ― |
ディスポーザー | ◯ |
浄水器 | ◯ |
洗浄機能付便座 | ◯ |
浴室乾燥機 | ◯ |
その他 |