| 所在地 | 東京都中央区勝どき5丁目11-14 | 建築年月 | 2021年3月 | 総戸数 | 96戸 |
|---|---|---|---|---|---|
| 交通 | 都営大江戸線「勝どき」駅 徒歩9分 | 構造 | 鉄筋コンクリート造・地上13階建 | ||
東京都中央区勝どき5丁目11-14
都営大江戸線「勝どき」 徒歩9分
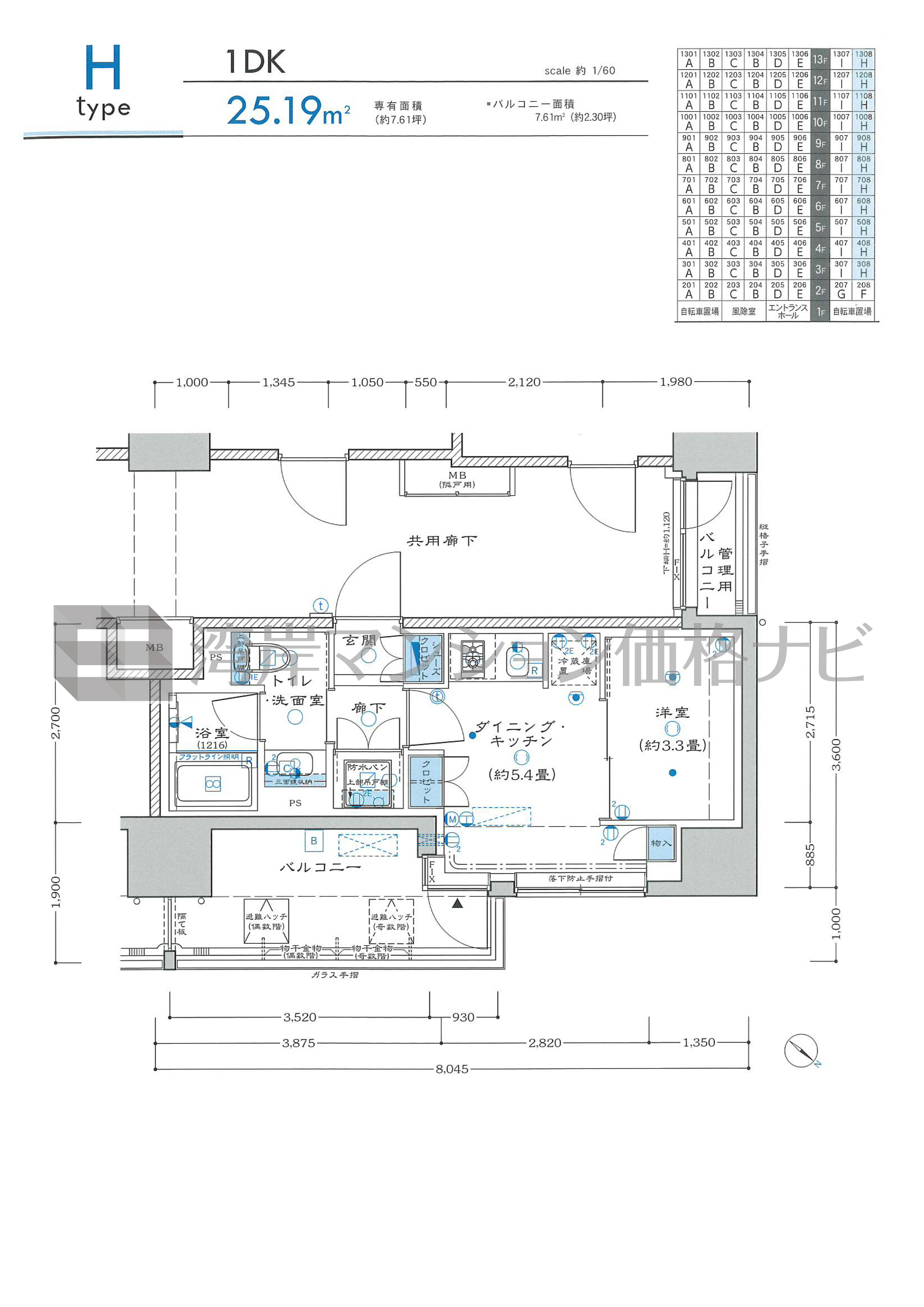
| 主要採光 | 北東 |
|---|---|
| 採光面数 | 1面 |
| 住戸位置 | 角 |
| バルコニー・テラス面積 | 7.61m² |
| ルーフバルコニー面積 | ― |
| 専用庭面積 | ― |
| リビング・ダイニング広さ | 5.4帖 |
| キッチン広さ | ― |
| 洋室1 広さ | 3.3帖 |
| +α広さ | ― |
| 和室有無 | 無し |
| リビング・ダイニング天井高 | 2,450mm |
| 洋室1天井高 | 2,450mm |
| キッチンタイプ | オープン型 |
| システムキッチン形状 | I型 |
| キッチンアクセス | オープン |
| 浴室大きさ | 1216 |
| 浴室開口 | 無し |
| 玄関床 | タイル貼 |
| 洋室床 | フローリング |
| リビング・ダイニング床 | フローリング |
| キッチン床 | フローリング |
| 床暖房 | ― |
| ウォークインクロゼット | ― |
| モニター付インターホン | ◯ |
| インターネット専用線 | ◯ |
| IHクッキングヒーター | ― |
| ガスコンロ | ◯ |
| 食洗機 | ― |
| ディスポーザー | ― |
| 浄水器 | ◯ |
| 洗浄機能付便座 | ◯ |
| 浴室乾燥機 | ◯ |
| その他 |